Представяме за продажба еднофамилна къща в модерен архитектурен стил, част от нов ваканционен комплекс от затворен тип, състоящ се от 37 жилищни сгради, обособени в самостоятелни дворове.
Комплексът е разположен на нос Акротир в град Несебър, на брега на Черно море със 100% зашеметяваща морска гледка, на 30 м разстояние от плаж НСА и 200 м разстояние от Южен плаж Несебър.
В процес на строителство. Очакван Акт 16 - юни 2027 г.
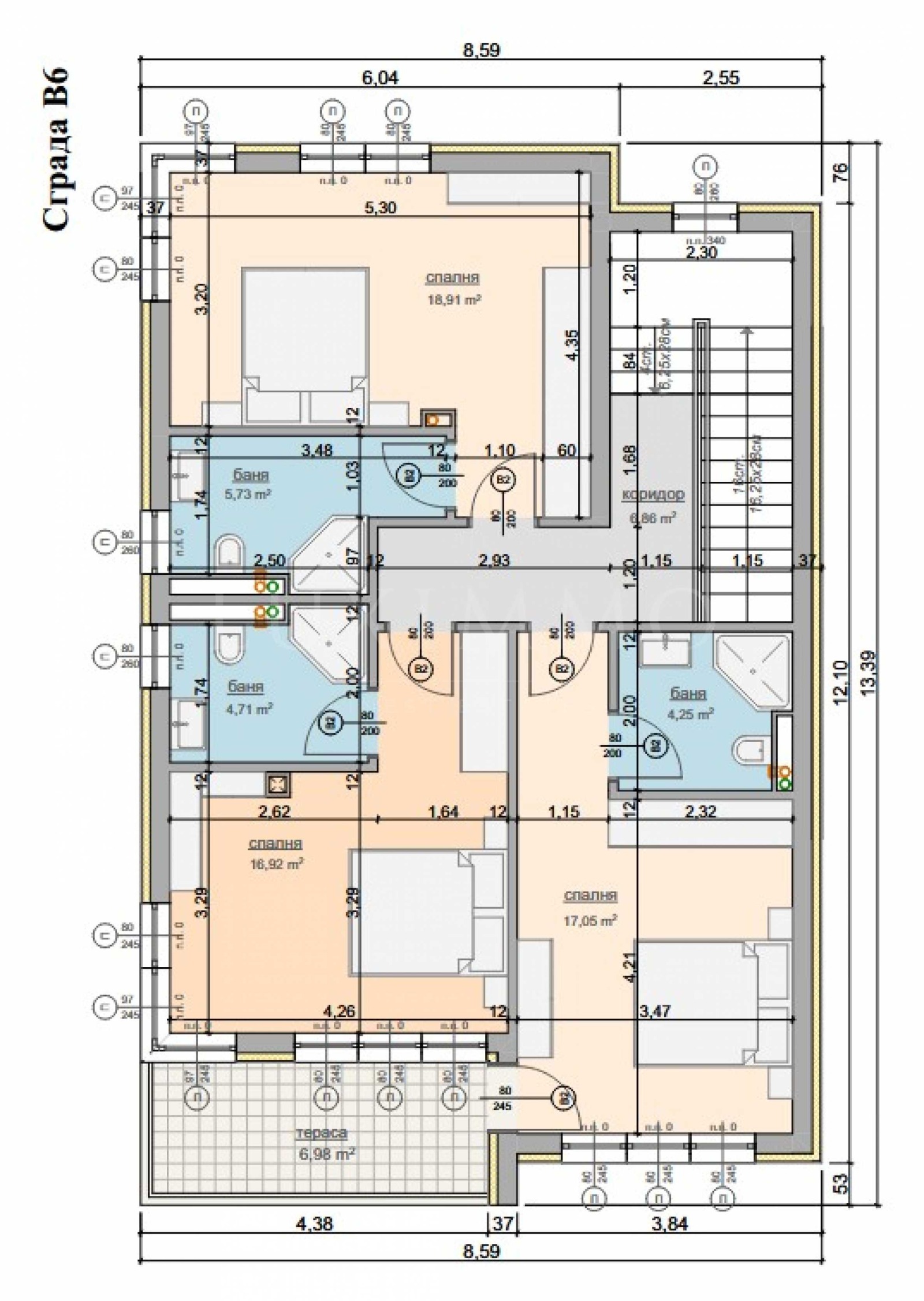
Имотът е с РЗП -192,32 кв.м, частен двор с площ от 242,32 кв.м, собствен басейн и две паркоместа.
Разпределение:
първи етаж: входно антре, склад, санитарно помещение, всекидневна с кухня и трапезария, веранда;
втори етаж: три спални със самостоятелна баня с тоалет, тераса.
Имотът се издава в степен на завършеност по БДС:
стени - шприцована мазилка;
под - замазка с шумоизолационна подложка;
ВиК системи - на тапа;
ел. системи - табла, ключове, контакти, фасунги;
слаботокова инсталация - кутии;
Wi-Fi изводи.
Дворно пространство:
отделено с ограда от стоманобетонов борд и метална ограда;
отопляем басейн - напълно завършен и оборудван;
паркомясто - за два автомобила;
ландшафтно озеленяване;
ландшафтно парково осветление;
поливна система.
Технически характеристики:
стоманобетонна конструкция - 3 m-H (височина) на етажа;
стени - керамични тухли Wienerberger Porotherm 25 см /многокамерен/ за по-добра топло- и шумоизолация;
фасада - вентилируема фасадна система HPL, облицовка с естествен камък, топлоизолация двойно шприцована каменна вата 10 см;
дограма алуминиева дограма термопрофил с трислоен стъклопакет, система плъзгане с повдигане с 50% отваряемост;
блиндирана взломоустойчива входна врата;
покрив - 10 см експандиран пенополистирол, армирана замазка, двойно залепено хидроизлолационно покритие с UV-фактор.
Очакваме Вашето запитване
Ако желаете да организирате оглед на имот, който Ви интересува, или да посетите някой от нашите ...
За повече информация свържете се с нас и цитирайте референтния номер на имота. Моля, кажете, че сте видeли обявата в този сайт.
Референтен номер: LXH-131012
Тел: 0882 342 293, 056 706 321
Отговорен брокер:Станислав Андреев
Без комисиона от купувача
Виж всички обяви в luximmoburgas.bazar.bg или тук
        
       
         
         
         
         
         
         
         
         
         
             
             
             
             
             
             
             
             
            






