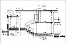
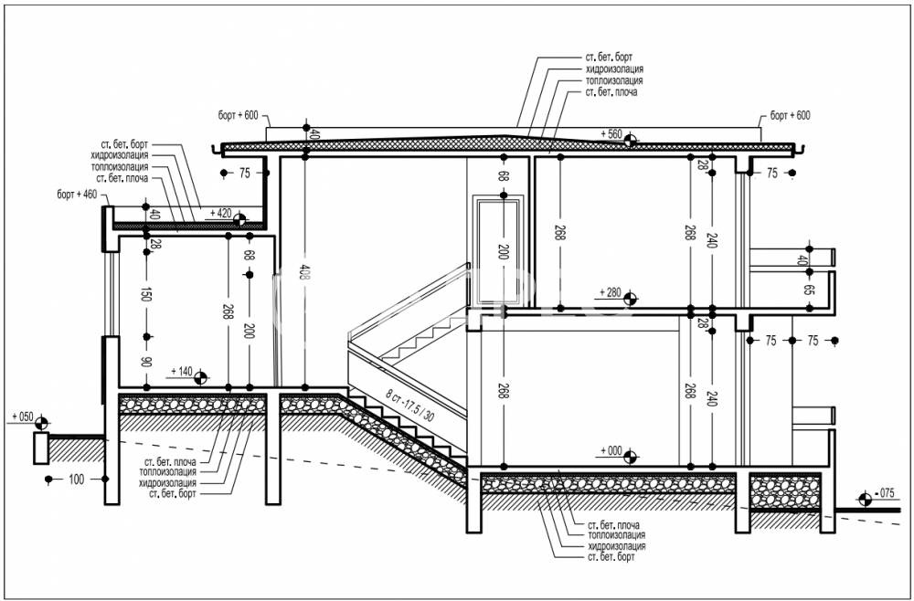
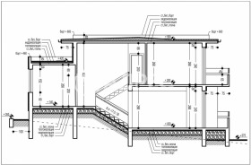
Двуетажна къща с РЗП: 148,8 кв.м. в парцел с площ от 273 кв.м С АКТ 14 !!!
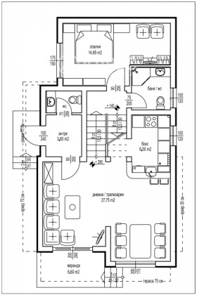
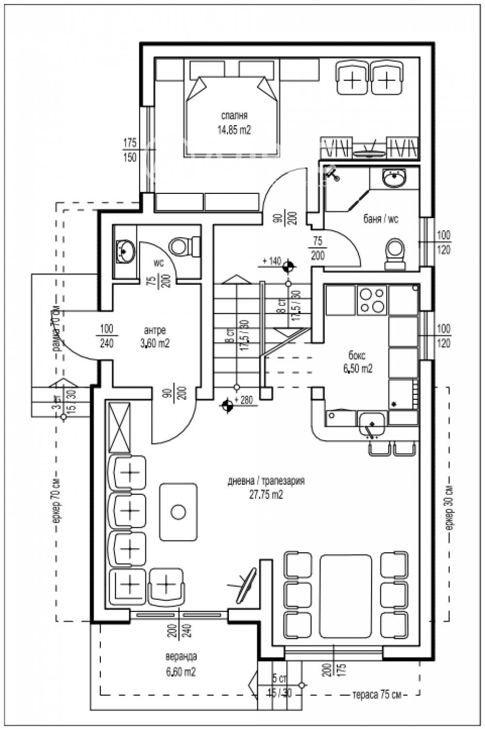
Партер - състои се от антре, дневна с трапезария и кухненски бокс, WC и веранда.
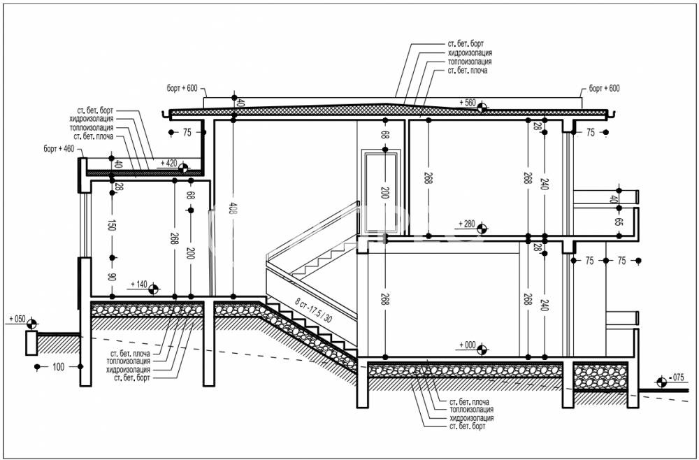
Етаж 1 - състои се от спалня и баня с WC и коридор / стълбище.
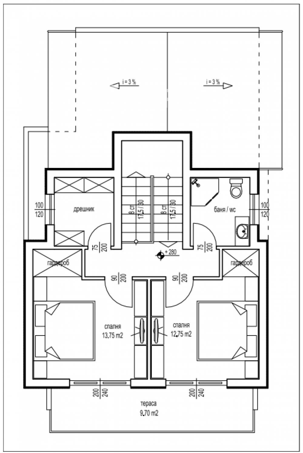
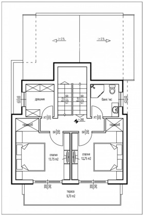
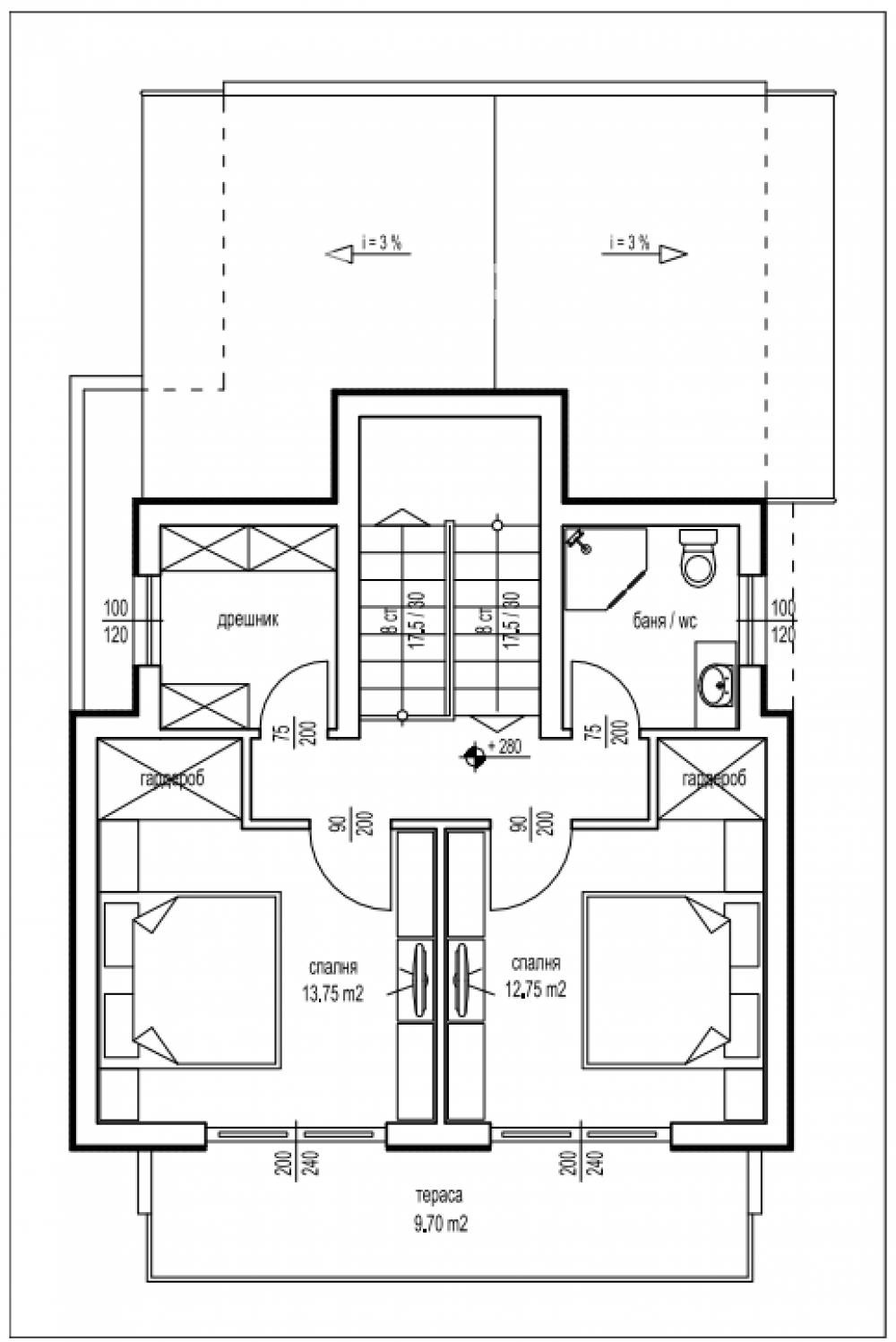
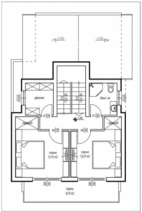
Етаж 2 - състои се от две спални, дрешник, бани с WC и тераса.
Степен на завършеност:
Акт 14 септември 2025 г.
Етапи на строителство:
Акт 15 до края на 2025 г.
Акт 16 до края на м.03,2025 г.
Схема на плащане: По договаряне !
с. Лъка се намира на 15 км от гр. Бургас и е отлична локация за живеене в спокоен район и същевременно на комуникативно и близко разстояние от гр. Бургас. На 8 км от гр. Поморие и на 5 минути с автомобил от летища Бургас !
Монолитна сграда със съвременна архитектура строежа на която ще приключи в края на 2025г. Издава се на тапа.
Имотът и инвеститорът предоставят възможност за финансиране с ипотечен кредит !
Обади се сега и цитирай този код 652396
Виж всички обяви в addressburgas.bazar.bg или тук
        
       
         
         
         
         
         
         
         
         
         
         
         
         
         
         
         
             
             
             
             
             
             
             
             
             
             
             
             
             
             
            






