Представяме нов проект от три еднофамилни къщи, разположени в зелена и тиха зона само на 10 минути с кола от центъра на град Варна.
Очаква се разрешение за строеж.
Проектирани с внимание към детайла и съобразени с най-съвременните изисквания за енергийна ефективност и комфорт, домовете съчетават функционално разпределение, простор и високи тавани с изчистена визия, естествени материали и интеграция в природната среда.
Основни характеристики:
РЗП: 277 кв.м;
Парцел към всяка къща: 380 кв.м., обособен на две нива с подпорни стени и веранда;
Височина на етажите: до 3.40 м;
Степен на завършеност: по БДС, с възможност за избор на довършителни работи.
Разпределение:
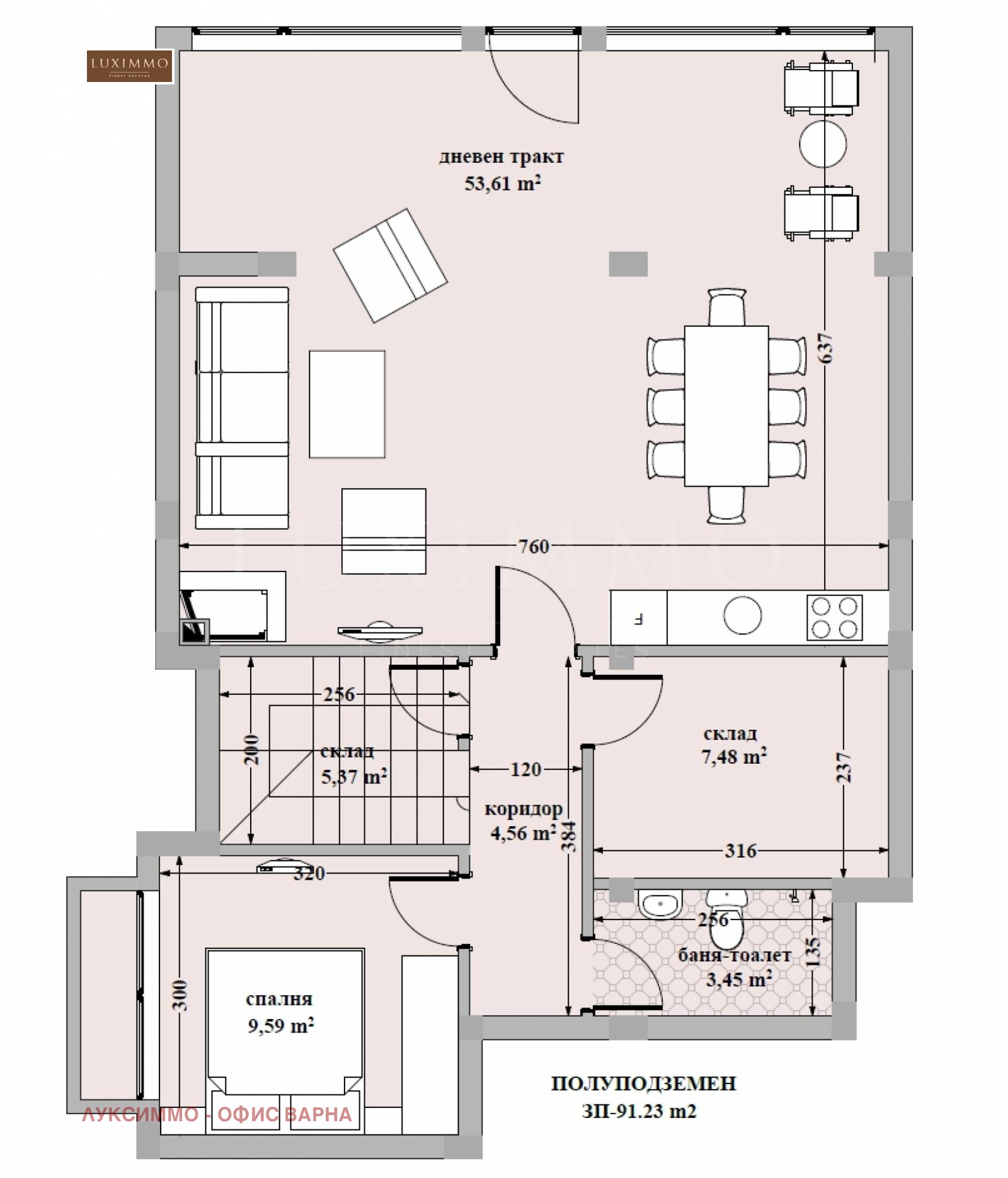
Ниво 1:
самостоятелен етаж с отделен вход: подходящ за второ домакинство или зона за развлечения (фитнес, кино, механа);
Жилищна площ: 91 кв.м;
Дневна зона с излаз към двор 54 кв.м;
Спалня с английски двор;
Допълнителна стая за склад, сауна или други;
Санитарен възел, машинно помещение.
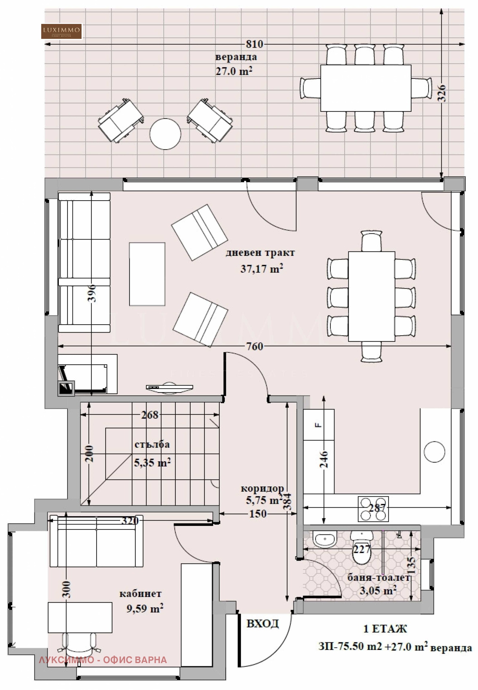
Ниво 2:
Основен жилищен етаж с излаз към горното ниво двор;
Просторна дневна с кухня и възможност за камина 38 кв.м;
Кабинет/спалня, баня с тоалетна;
Веранда 27 кв.м;
Паркинг за два автомобила с възможност за покритие.
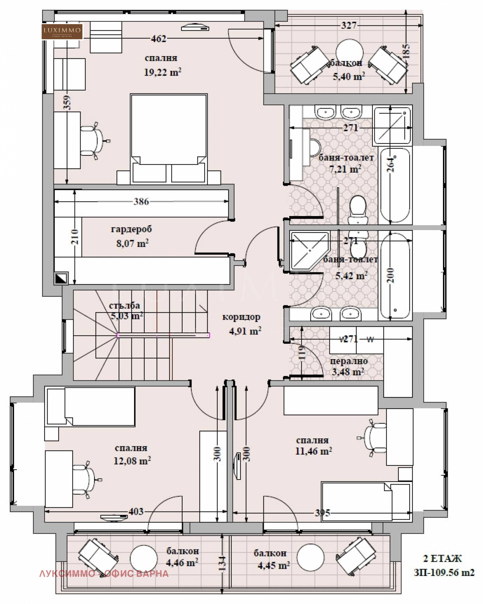
Ниво 3 Нощна зона:
Две южни детски стаи с обща тераса;
Просторна главна спалня с гардеробна, собствена баня и покрита тераса;
Баня с тоалетна, перално помещение, коридор с естествена светлина от покривен прозорец VELUX.
Технически спецификации:
Монолитна стоманобетонна конструкция;
Подготовка за подово отопление, соларни панели, термопомпа и камина;
Висококачествена дограма REHAU, троен стъклопакет;
Фасади от естествен камък и силикат-силиконова мазилка;
Топло- и хидроизолации от последно поколение;
Входна врата Hormann;
Изградени огради, пътеки, фасадно осветление и подготовка за видеонаблюдение и автоматизирана поливна система.
Локация и удобства:
Плаж: 1 ...
За повече информация свържете се с нас и цитирайте референтния номер на имота. Моля, кажете, че сте видeли обявата в този сайт.
Референтен номер: VAR-130341
Тел: 0882 815 082, 052 813 656
Отговорен брокер:Жулиета Багдасарова
Без комисиона от купувача
Виж всички обяви в luximmovarna.bazar.bg или тук
        
       
         
         
         
         
         
         
         
         
         
         
             
             
             
             
             
             
             
             
             
            






