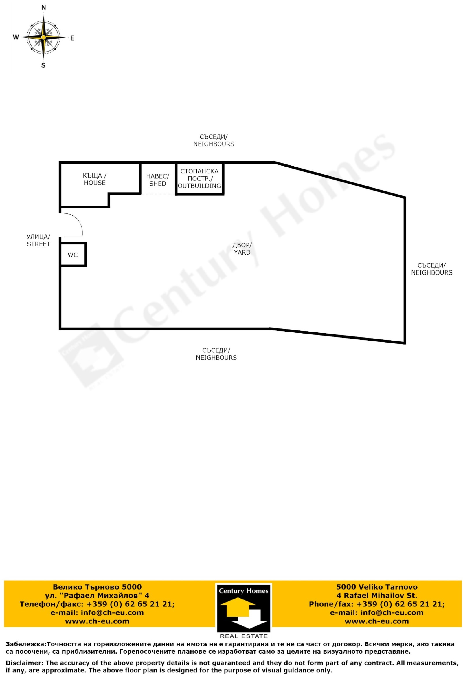
Къщата е с площ от 130 кв. м., разпределени между два етажа. На първият етаж има кухня с трапезария, дневна, входно антре и една спалня. Външно стълбище води към втория етаж, където се помещават три спални, коридор и тераса, от която се открива приятна гледка към градината и околността. Имота е с дървени врати и дограма, с налични вода и електричество. Жилището се продава необзаведено, готово за реновиране и преустройство според вашите виждания.
Парцелът от 1060 кв. м. е равен, ограден с телена мрежа, с малка стопанска постройка в него и достатъчно място за градинарство и креативност.
Имотът е с целогодишен достъп, което го прави отличен избор както за постоянно живеене, така и за ваканционен дом.
За да разгледате виртуален тур, моля копирайте и поставете линка във Вашия браузер
ВИРТУАЛЕН ТУР:https://app.cloudpano.com/tours/stBRn4Zn1
РЕФ. :145294
Виж всички обяви в century21homes.bazar.bg или тук
        
       
         
         
         
         
         
         
         
         
         
         
         
         
         
         
         
         
             
             
             
             
             
             
             
             
             
             
             
             
             
             
             
            





