Двор от 400 кв.м, находящ в центъра на селото.
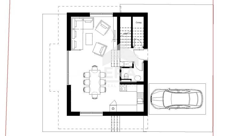
Имотът ще бъде издаден по БДС и по план е със следното разпределение:
Първи етаж - дневна с кухненски бокс, склад и тоалетна.
Втори етаж- три спални и две бани с тоалетна.
Село Видрица се намира на 5 км от гр. Брезник, на 25 км от гр. Перник и на 50км. от София.
Оферта 3304260
Виж всички обяви в eranadejda.bazar.bg или тук
        
       
         
         
         
         
             
             
             
            





