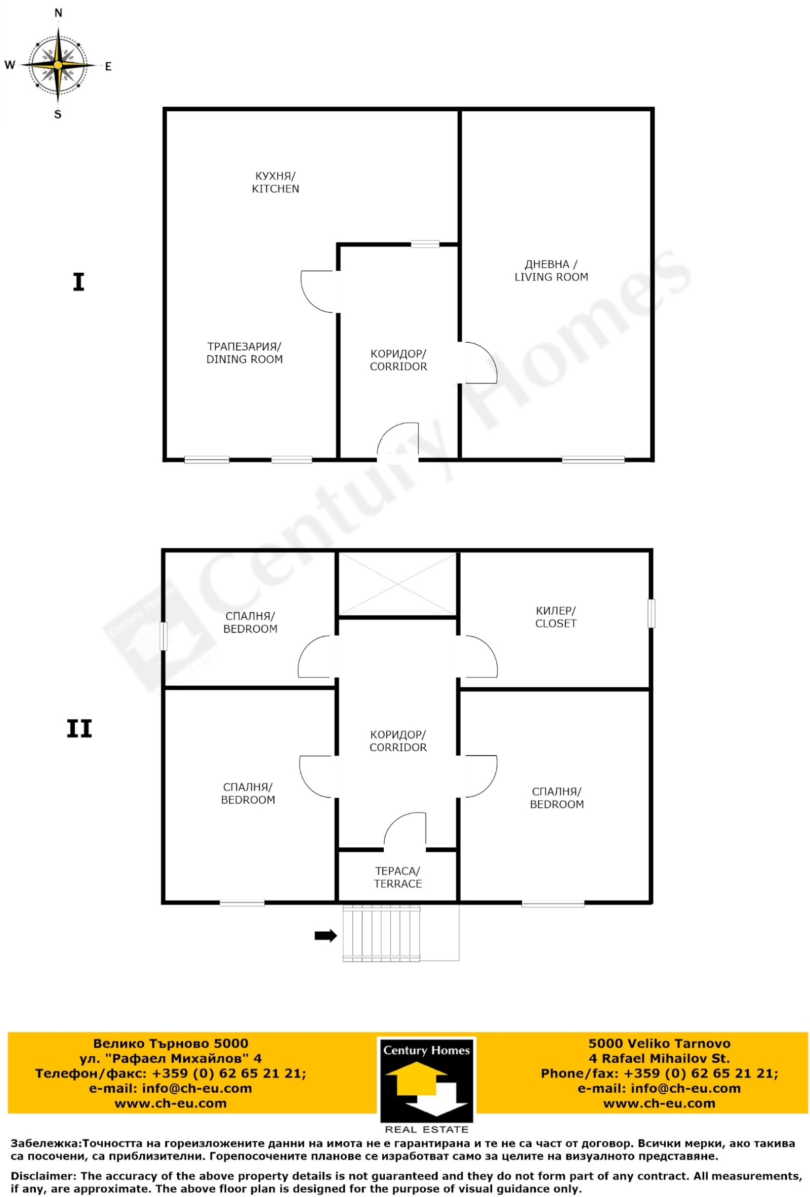
Къщата е с жилищна площ от 100 кв. м., разпределени на два етажа. Първият етаж включва антре, дневна и кухня с трапезария. Външно стълбище води до втория етаж, на който са разположени три спални, килер и тераса. Жилището разполага и с 20 кв. м. маза.
Дограмата и вратите в къщата са дървени, налични са ток и вода, а някои от стаите са частично обзаведени.
Имотът включва двор от 900 кв.м. - равен и с правилна форма, ограден с ограда от камък, тухли и тел. В него има две селскостопански постройки. Достъпът е целогодишен.
За да разгледате виртуален тур, моля копирайте и поставете линка във Вашия браузер
ВИРТУАЛЕН ТУР:https://app.cloudpano.com/tours/SrUCEDyCt
РЕФ. :140312
Виж всички обяви в century21homes.bazar.bg или тук
        
       
         
         
         
         
         
         
         
         
         
         
         
         
         
         
         
         
         
             
             
             
             
             
             
             
             
             
             
             
             
             
             
             
             
            






