Агенция ВАШ ДОМ предлага на Вашето внимание нова редова къща на три етажа, с РЗП - 118кв.м. и следното разпределение:
Ет.1 със ЗП - 39,52м2, където са разположени дневен тракт с кухня с излаз към веранда, която преминава плавно в градина, санитарен възел;
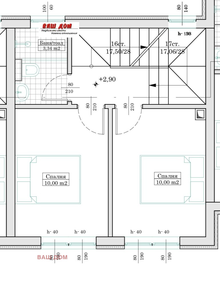
Ет.2 със ЗП - 39,52м2, състоящ се от 2 спални и баня-тоалет;
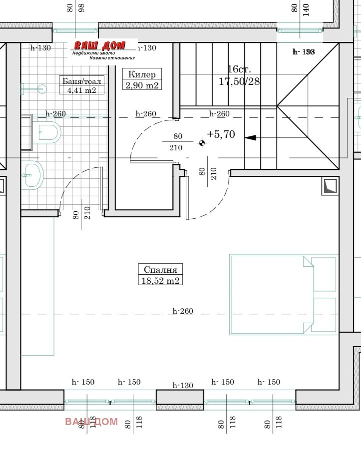
Ет.3 със ЗП - 39,52м2, където е разположена голяма спалня, килер, баня-тоалет. двор с площ от 120 кв.м.
Предвидени са 2 бр. Паркоместа.
Отлична локация с асфалтов достъп, отстои на 2км. от к.к.Константин и Елена и кв.Виница.
Районът се отличава с чист въздух и живописна природа, бърз достъп и близост до спирки на градския транспорт.
Къщите ще бъдат завършени до етап БДС със следните екстри:
- дограма REHAU Synego- 80мм. с троен стъклопакет
- входна врата HORMAN
- система за водно подово отопление
- фасадна топлоизолация 12см. Eps на BAUMIT
- покривна топлоизолация 15см. каменна вата на KNAUF
- подова топлоизолация 8см. на FIBRAN.
- веранда, настилка от гранитни плочи
- паркинг, настилка от бетонни павета Semmelrock
- стени с керамични блокова на Porotherm
- външен извод за поливна система
- покривни прозорци Velux
Възможност за закупуване на друга идентична редова къща с по-голям двор с площ от 230 кв.м. за цена от 220 000EUR.
Стартирало строителство м. Август 2025г.
Краен срок: Декември 2026г.
Възможност за разсрочено плащане по индивидуална схема на купувача.
Виж всички обяви в vashdom.bazar.bg или тук







