Самостоятелна новопостроена къща село Приселци. Сградата е нанесена в кадастъра което е видно от снимките (АКТ 14, степен на завършеност и удостоверение от община Аврен). Това дава възможност за отпускане на ИПОТЕЧЕН КРЕДИТ от банка.
Къщата е с РЗП 203 м2, построена в самостоятелен парцел от 649 м2 който има излаз на две улици.
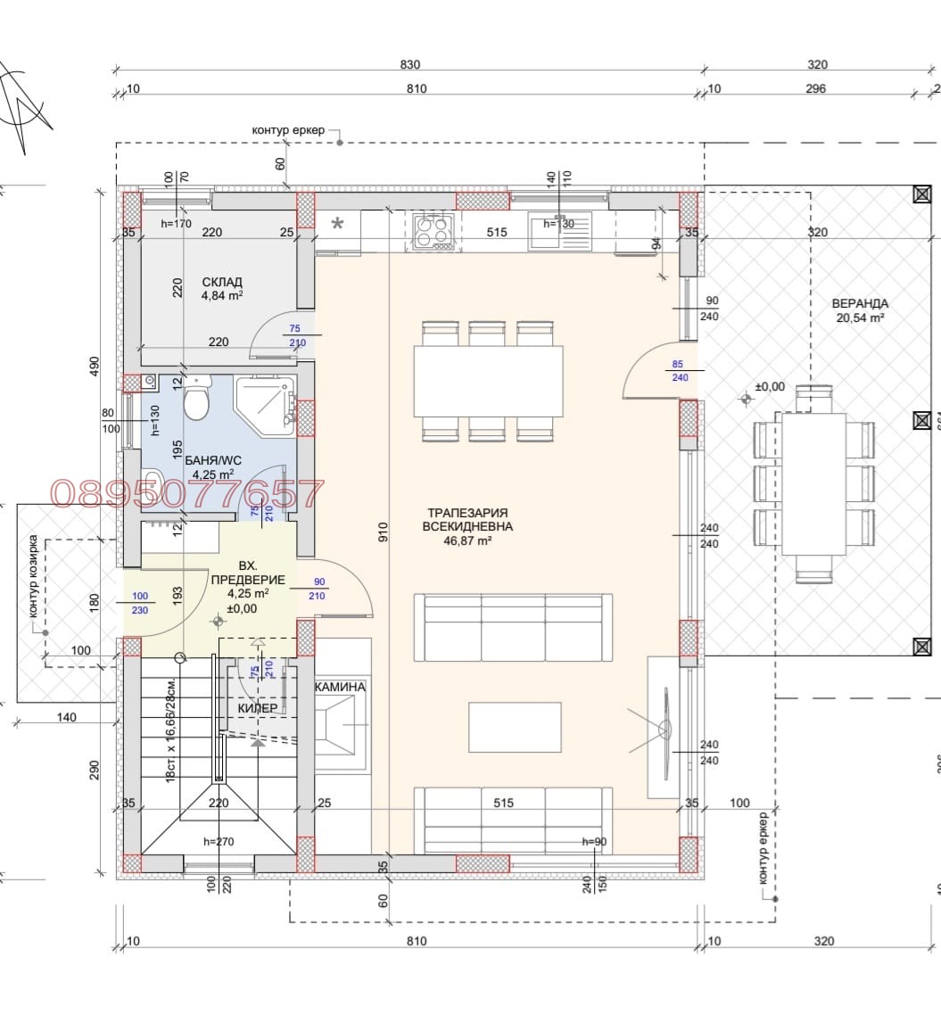
Къщата е със следното разпределение:
1 - ви етаж: входно антре, коридор, баня с тоалетна, складово помещение, вътрешно стълбище към втория етаж, просторна дневна 46,7м2 с френски прозорци и веранда от 20,54 м2 покрита с покрив.
2 - ри етаж: 3 спални (17.61 м2; 15.69 м2; 16.79 м2), санитарен възел баня и тоалетна (7.52 м2), перално помещение, гардеробна, две от спалните са с излаз на тераса.
Всички санитарни помещения, стълбище, гардеробна, склад са с прозорци и естествена дневна светлина. Таванското помещение на къщата е използваемо височината му е 2.5 м, достъпът му е чрез сгъваема стълба, има стъклена капандура за естествена дневна светлина и не е в квадратурата на сградата.
Всички помещения в сградата са ориентирани на ЮГ. Изградена е ВиК и ЕЛ мрежа окабелена е с ТВ кабели и кабел за ИНТЕРНЕТ. Отоплението на сградата е с ТЕРМОПОМПА, конвектори и лира в банята. Поставено е подово отопление със съответната изолация бойлер за двете бани захранвано от термопомпата.
Имотът се намира на 16 км от Катедрален храм 'Св. Успение Богородично' Варна, отлична локация, бърз и лесен достьп.
В село Приселци има начално училище, детска градина, супермаркети, лаборатория, аптека, бензиностанции, паркове, поща.
ЧАСТНО ЛИЦЕ - предоставям документи за проверка от ваш адвокат (напълно изрядни документи с партида на ток и вода).
За повече информация се обадете на тел. 0888407861







