Посочената цена е за една къща.
Къщите са масивно строителство и енергийно обезпечени с подово отопление и охлаждане чрез конвектори, както и регулиране на температурата във всяка стая.
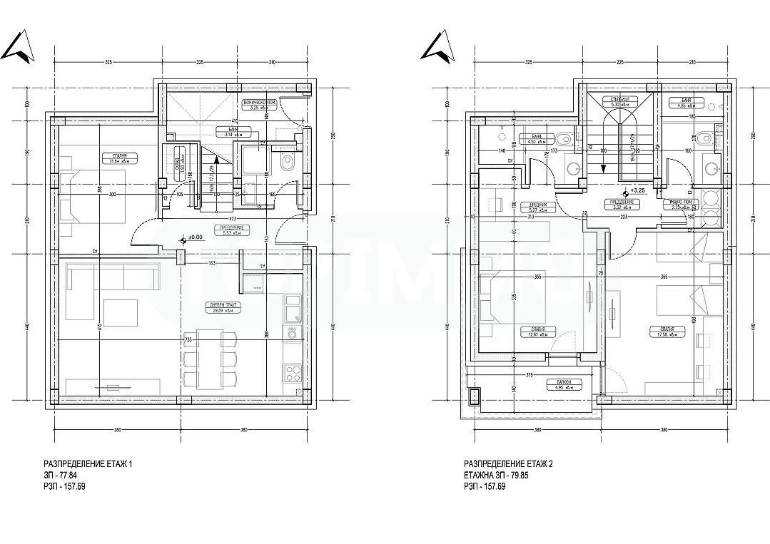
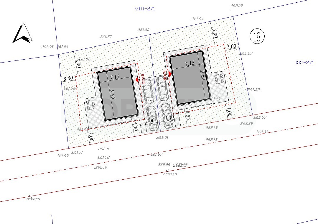
Всяка една къща е разположена върху парцел 364 кв.м. и е с РЗП 157,69 кв.м.
Имат следното разпределение:
преддверие
просторна всекидневна с кухненска част - 29,89 кв. м
детска спалня - 17,50 кв. м
родителска спалня 17,88 кв. м със собствен санитарен възел и възможност за дрешник
гостна спалня 11,64 кв. м
баня и тоалетна - 2 броя
техническо помещение
мокро помещение
коридор
веранда
тераса
Двуетажните еднофамилни жилищни къщи са изцяло оборудвани с техника и висококачествени материали вложени в строителството, за да осигурят 82,57% енергийна ефективност. Открити са партиди за ток и вода.
Вложените в къщите материали са следните със съответните гаранции и сертификати за качество, отговарящи на всички отвърдени европейски стандарти:
строеж - конструкция 20 години гаранция;
ВиК инсталации 10 години гаранция, цялостна система PIPE LIVE с вградени структури;
топлоизолация с 15 години гаранция;
дограма REHAU с троен стъклопакет ENERGY;
термопомпена подова система за охлаждане и затопляне, във всяка стая има конвектори за затопляне и охлаждане на помещенията;
хибридна фотоволтаична електроцентрала с номинална мощност от 10 kw и инсталирани 10 kwH батерии за съхранение на електроенергията, което ще осигури автономност на домакинството през нощната част от денонощието.
Във всяка от къщите техниката, която е използвана е от най-висок клас на ефективност - Фотоволтичните модули имат 12 години техническа гаранция и 25 години производствена гаранция. Хибридните инвертори са от последно поколение монофазни инвертори и батерии, които имат 10 години гаранция.
Комбинацията между висококачествени материали вложени в качественото строителство и термопомпената система свързана с фотоволтаичната централа осигуряват уют и топлина през зимните месеци и прохлада през летните.
Проектът е стартирал, очакван срок на завършване до септември 2025г.
Можем да организираме оглед в удобно за вас време, свържете се нас! Референтен номер: SV-3942
Виж всички обяви в topimmo.bazar.bg или тук
        
       
         
         
         
         
         
             
             
             
             
            






