Вече с АКТ 14 !
БЕЗ КОМИСИОННА !
Представяме Ви индивидуална двуетажна къща, която разполага с 2 паркоместа и веранда с излаз към задния двор с площ 220 кв.м.
разположена на отлична локация в село Марково в близост до главен път и бързо и удобно придвижване до град Пловдив.
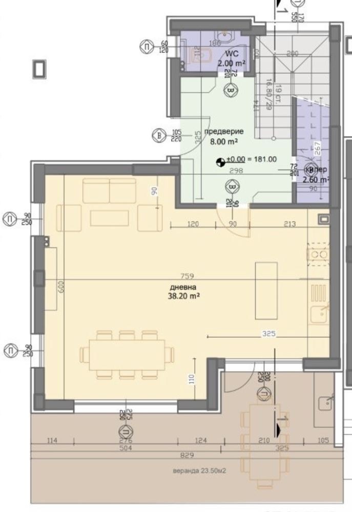
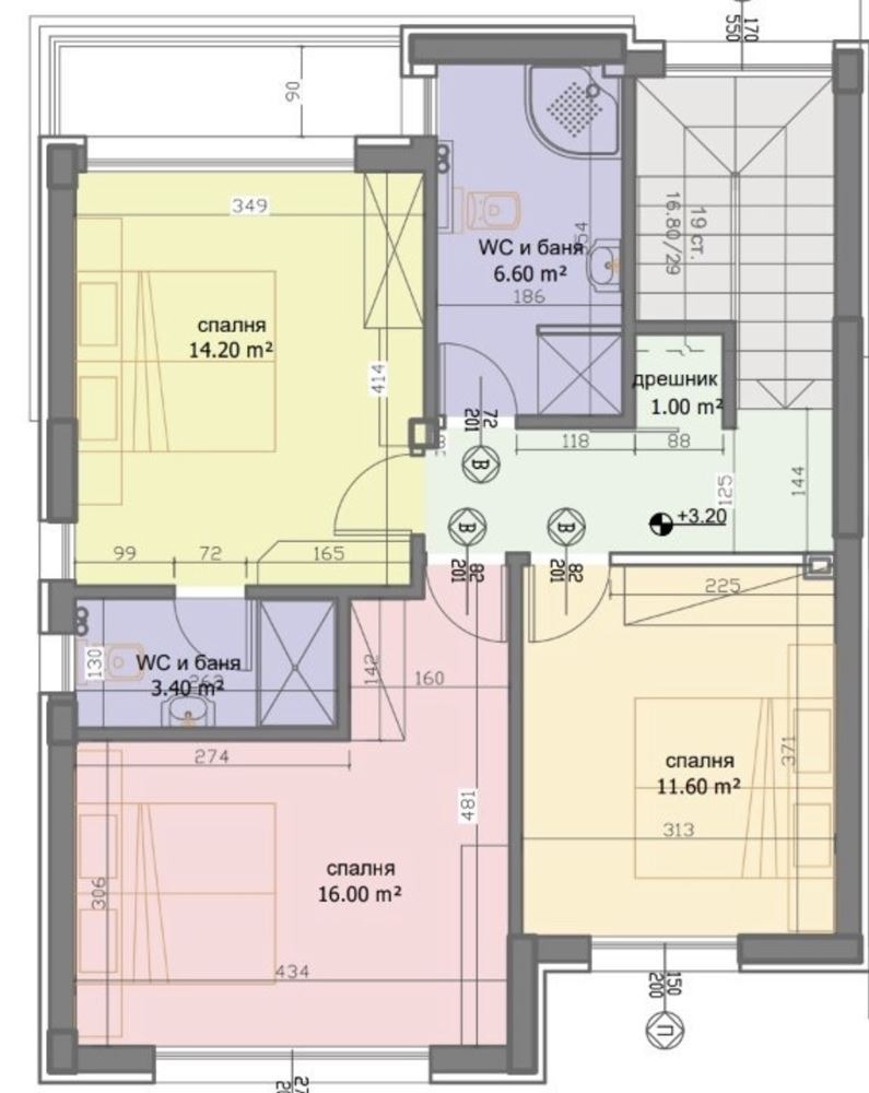
Къщата е със следното разпределение:
Първи етаж: входно антре, просторна всекидневна с кухненска част, складово помещение, WC и веранда.
Втори етаж: Три слънчеви спални, две бани и тераса.
РЗП: 176 кв.м.
Двор: 220 кв.м.
Гъвкави схеми на плащане !
Възможност за проектиране по желание на клиента.
Цена: 200 000 Евро.
Телефон за връзка: 089 8731 598
Виж всички обяви в zwezdata.bazar.bg или тук







