ИММОТИВ' притежава правата да разпространява в реклама, и да предлага за продажба следният обект :
Просторна къща с функционално разпределение и обща площ от 150 кв. м, разположена в живописния квартал Сотира, Варна. Имотът е идеален за семейства, търсещи комфорт и уют в спокойна среда, с възможност за индивидуално оформление.
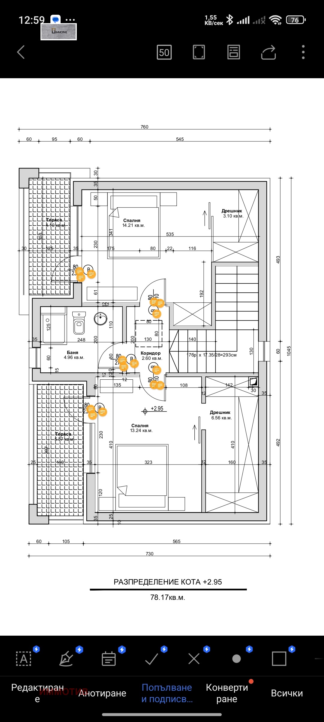
ЖИЛИЩЕ:
- Къщата разполага с 4 стаи, от които 3 са спални, предоставяйки достатъчно пространство за всяко член на семейството.
- Имотът включва 2 бани, и самостоятелно още една тоалетна отделно, което е изключително удобно за голямо семейство.
- Покупката на етап планиране на зелено ви дава възможност да изберете една от само четирите сгради, най-предпочитана от Вас като ситуиране в терена.
- Строителството е предвидено да бъде изпълнено монолитно -с тухли, на плоча.
ДВОР:
- Имотът разполага с дворна площ от 400 кв. м, в общ съсобственост, идеална за отдих и забавления на открито.
- Налични са 2 паркоместа около сградата, което е допълнително предимство.
ОТОПЛЕНИЕ:
- Отоплението е на електричество, което осигурява удобство и ефективност.
ДОПЪЛНИТЕЛНИ ПРЕДИМСТВА:
- Имотът е част от затворен комплекс, гарантиращ сигурност и спокойствие.
- Без такса обслужване.
Тази къща е отлична възможност за тези, които търсят нов дом в спокойна и зелена среда, близо до централната част Варна. Не пропускайте шанса да се запознаете с проекта ! За повече информация и организиране на оглед, свържете се с нас. Вашият нов дом ви очаква!







