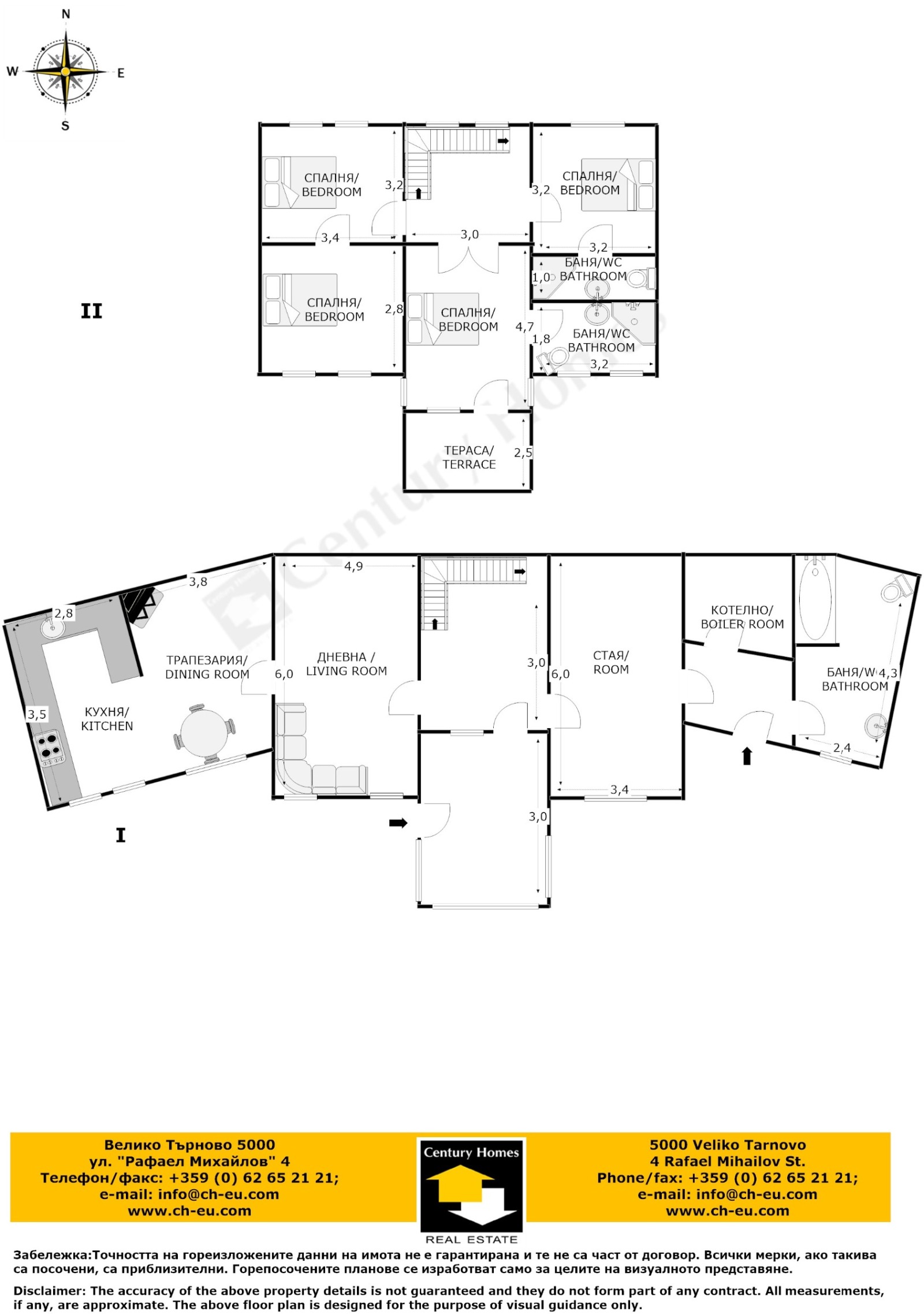
На първия етаж ще откриете светло и уютно антре (зимна градина), което води към коридор, свързващ дневната зона, трапезарията с камина и напълно оборудваната кухня. На този етаж има и кабинет, котелно помещение и баня с тоалетна. Вътрешно стълбище отвежда към втория етаж, където се намират три спални основна спалня с преходна стая, подходяща за кабинет или детска стая, втора спалня с баня и тоалетна, и трета южна спалня с прилежаща светла баня и тоалетна. На същия етаж е разположена просторна панорамна тераса, откриваща прекрасна гледка към природата.
Къщата разполага с котел за отопление на пелети с изградена система и радиатори в цялата сграда (все още немонтирани), както и собствен водоизточник кладенец с хидрофорна система. Големият двор с площ от 3870 кв.м. включва басейн, а също и основи на селскостопанска сграда с одобрен архитектурен проект за разширение с две допълнителни стаи.
Тази стилна и функционална къща предлага отлична възможност за комфортен живот сред природата, съчетавайки простор, уют и модерни удобства.
За да разгледате виртуален тур, моля копирайте и поставете линка във Вашия браузер
ВИРТУАЛЕН ТУР:https://app.cloudpano.com/tours/QA9tDNF5G
РЕФ. :170282
Виж всички обяви в century21homes.bazar.bg или тук
        
       
         
         
         
         
         
         
         
         
         
         
         
         
         
         
         
         
         
             
             
             
             
             
             
             
             
             
             
             
             
             
             
             
             
            





