Директно от инвеститора, без комисионна и без такса поддръжка!
Имот на морето продава 6 броя луксозни ТРИЕТАЖНИ КЪЩИ с гледка към морето в кв. Крайморие, гр. Бургас.
Къщите са с РЗП -196,51 кв.м., разпределени на 3 етажа. Към всяка къща има по две паркоместа и обособени собствени дворове с площ от 120 кв.м. до 132 кв.м.
Цена за една къща - от 255 000евро!
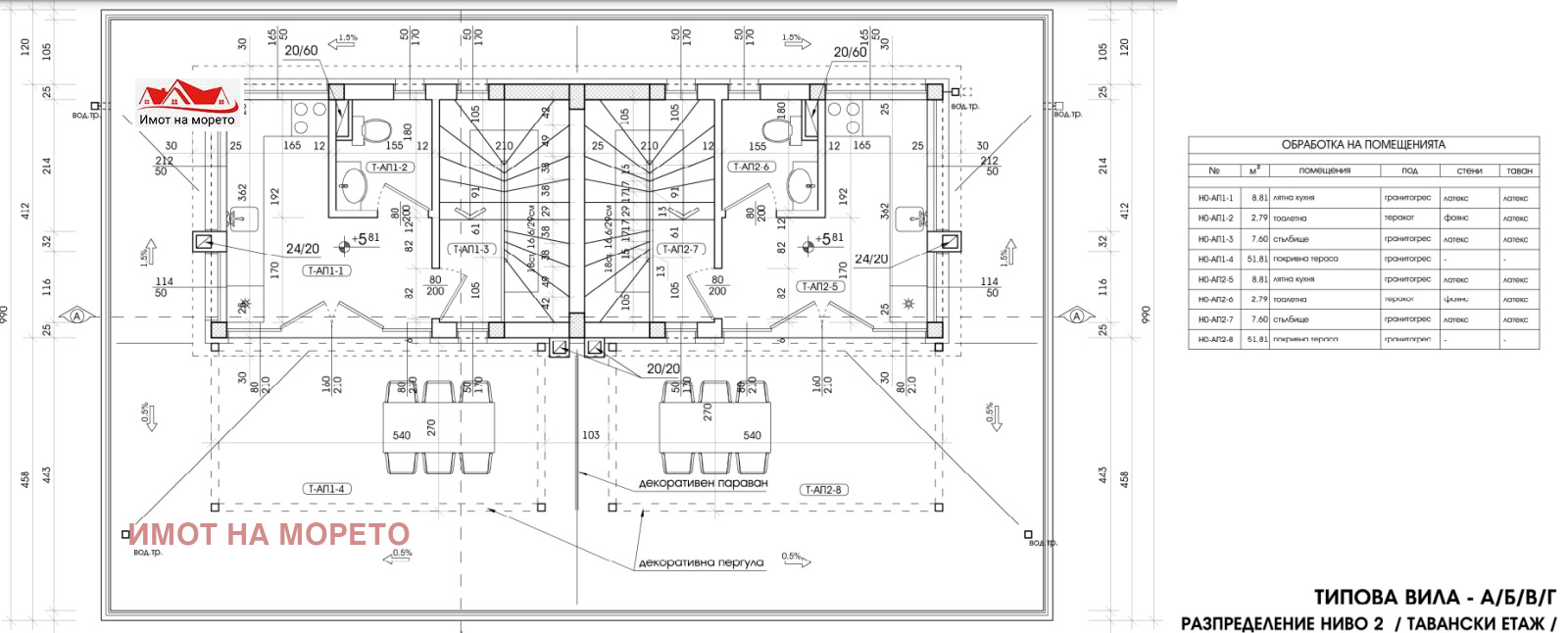
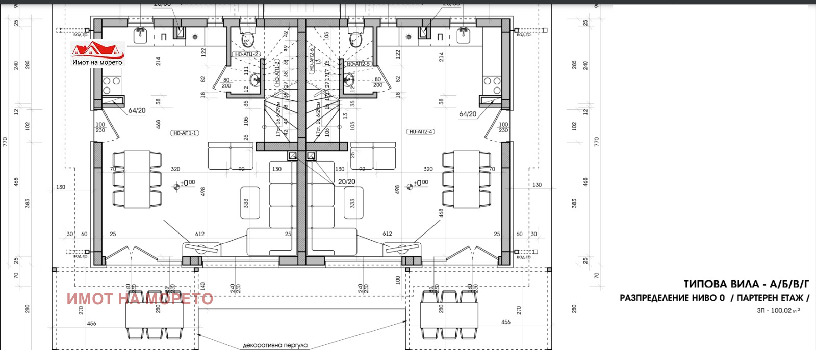
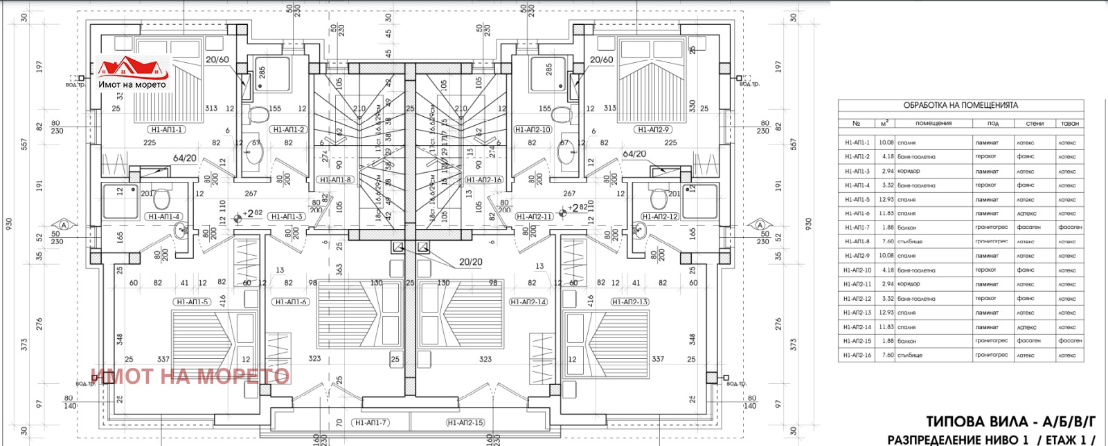
РАЗПРЕДЕЛЕНИЕ:
Партер-просторна всекидневна с кухненски кът и трапезария, санитарен възел и покрита веранда.
Първи ет. -три спални, едната със собствен санитарен възел и един общ за другите две спални, тераса.
Втори ет. -лятна кухня, баня и WC, прекрасна веранда с гледка към морето.
Къщите се продават в степен на завършеност по БДС.
Тухли Поротерм, фасадна топлоизолационна система Баумит с 12см ЕПС.
Облицовка на партера с плочи от естествен камък. Немска ПВЦ дограма. Входни врати на къщите Хьорман.
Вътрешна варо циментова мазилка Баумит; възможност за инсталация на термопомпа.







