Предлаганият за продажба имот се намира в спокоен район, северно от град Велико Търново. Село Хотница е разположено на 19 км. от старопрестолния град и се намира в близост до главен път Велико Търново-Русе. Селището е близо до река, водопад и екопътека, предлагащи прекрасна възможност за разходка сред природата.
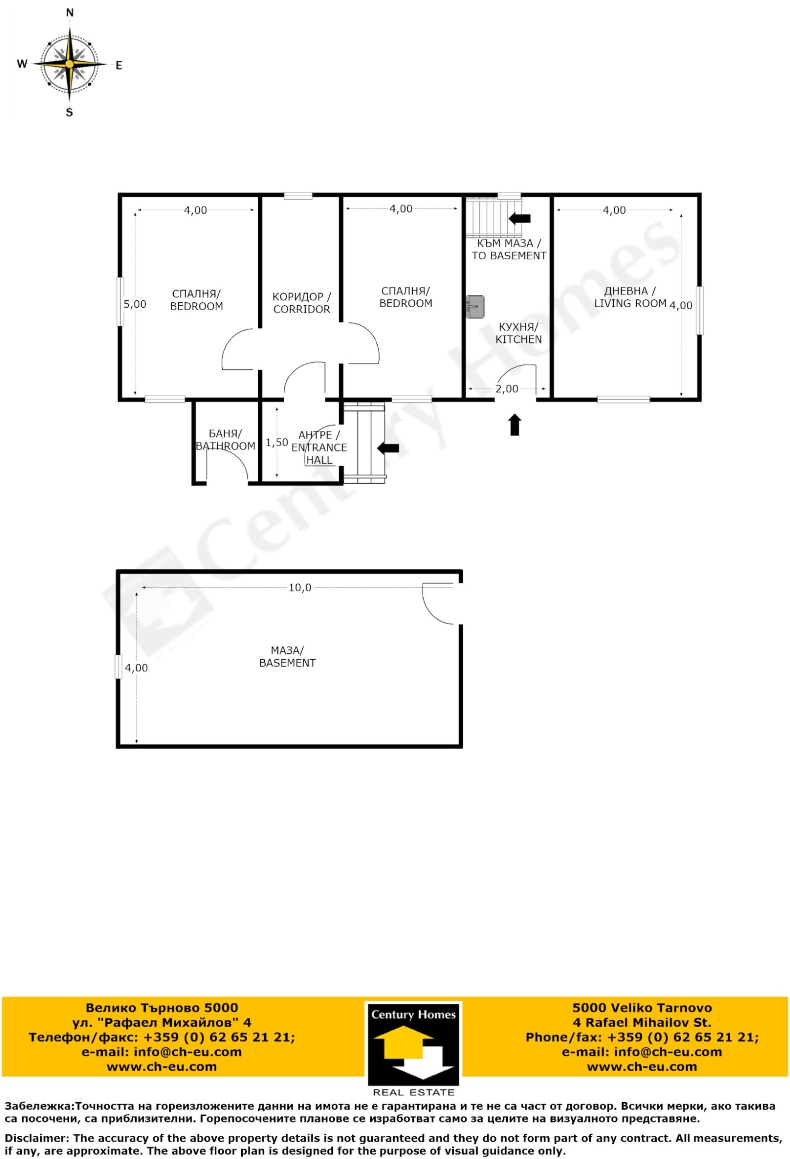
Къщата е на един етаж с пристройка, със застроена площ от 100 кв.м. Основното ниво е достъпно с няколко външни стъпала и се състои от две спални и коридор, както и малко входно антре. В пристройка до къщата се намират кухня и дневна, а няколко стъпала от кухнята водят до просторна маза. С външен достъп, долепена до къщата е разположена баня.
Имотът има дървени подови настилки, дограми и врати, трифазен ток и вода. Продава се необзаведен.
Площта на дворното място е 1500 кв.м. и е заградено с каменна ограда. Има външна тоалетна, селскостопанска постройка (20 кв. м.), навес, кладенец и гараж с канал (14 кв. м.).
За да разгледате виртуален тур, моля копирайте и поставете линка във Вашия браузер
ВИРТУАЛЕН ТУР:https://app.cloudpano.com/tours/FK75_lgcW
РЕФ. :116209







