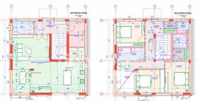
Общата квадратура от 223 кв.м е разпределена по следния начин:15
Първи етаж дневна с кухня и трапезария,антре, складово помещение,сервизно помещение, тоалетна.
Втори етаж основна спалня със собствена баня и дрешник, две самостоятелни спални, баня с тоалетна.
Къщата ще разполага със собствен двор от 238кв.м в който има възможност за изграждане на басейн, по желание на собсвениците.
Терра хил е разположен в сърцето на село Рударци, на южен склон, до централна улица, гора и гледка към планината. Бърз достъп до главен път Е871, който да ви отведе до Столицата или до автомагистрала Струма.
Къщите са различни и бъдещите собственици имат възможност да избират, между 4 варианта. Архитектът е заложил двойна височина в дневната, което дава допълнителна светлина и простор.
Отоплението е решено с термопомпи. Всяка къща разполага с личен двор, в който при желание може да бъде изграден басейн. Комплексът разполага с детска площадка, за малчуганите. Видеонаблюдение.
Гаранция за качество, навременно строителство и крайни цени и условия са както инвеститорът, така и банката, която финансира проекта.
Обади се сега и цитирай този код 640195







