реф.15262 Вашият НОВ ДОМ сред ПРИРОДАТА!!!!РЗП - 222кв.м и ПАРЦЕЛ - 700кв.м. Предлагаме Ви НОВОСТРОЯЩА СЕ КЪЩА разположена на хълмовете над село Храбрино, на 400 м надморска височина, и е част от живописната местност. Регионът е известен със своята спокойна атмосфера, свеж въздух и зашеметяващи гледки, които ви предоставят уникалната възможност да живеете сред природата, без да се лишавате от удобствата на градската среда, която е на кратко разстояние. Регионът е Спокойствие ,ЧИСТ ВЪЗДУХ и природна красота!!!
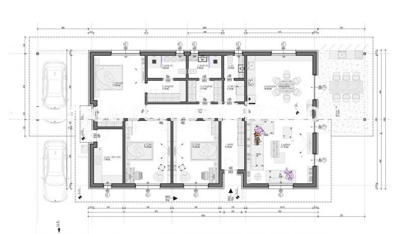
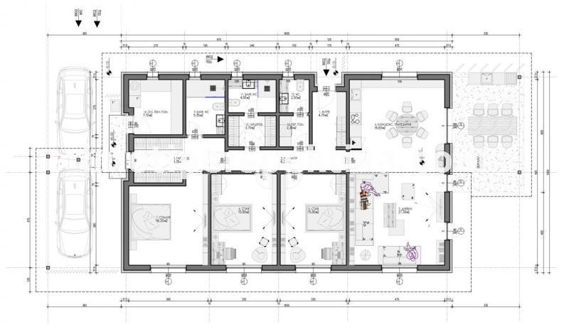
Разпределението е следното:
Дневна и трапезария: Просторна и светла дневна с обща площ от 44 м², която плавно преминава в трапезарията и откритата веранда с площ 21.00 м². Това е идеалното пространство за семейни събирания, релаксация и приятни вечери с приятели на открито.
Кухня: Просторна и функционална кухня, свързана със склад и сервизно помещение, което включва баня. Тази конфигурация предоставя удобство и организация на домакинските задължения, като предлага достатъчно място за съхранение и поддръжка.
Спални: Основната спалня с площ 17.16 м² е истинско убежище за релаксация. Разполага със самостоятелна баня с площ 4.5 м² и собствена гардеробна с площ 4.5 м², осигуряваща на обитателите максимален комфорт и лично пространство.
Втората и третата спалня, всяка с площ 15.00 м², разполагат със собствена обща гардеробна от 3.7 м², която предоставя достатъчно място за съхранение на личните вещи. Спалните имат достъп до отделна обща баня, която е удобно разположена, така че да обслужва двете стаи, осигурявайки удобство и практичност. Покрит гараж и паркоместа: Къщата разполага с покрит гараж с площ 36.00 м², който предлага пространство за два автомобила, и допълнителен навес за паркиране с площ 19.40 м².
Използване на съвременни технологии и висококачествени материали, които осигуряват минимални топлинни загуби през зимата и естествена прохлада през лятото, без необходимост от климатична система. Всичко това води до значителни икономии на разходи за отопление и охлаждане, което прави домовете не само комфортни, но и устойчиви в дългосрочен план.
Висока функционалност и поддръжка: Дизайнът включва равни повърхности без стъпала и сложни елементи, което прави пространствата по-лесни за почистване и поддръжка. Външните и вътрешните стени са изградени от качествени материали тухли с топлоизолация, дограма с троен стъклопакет и покривни системи с висока енергийна ефективност.
Самостоятелна пречиствателна станция, което осигурява пълна независимост от централната канализация.
ДИЗАЙНЪТ съчетава модерния стил на живот с природната красота и спокойствие.
Тук ще откриете перфектния дом за вас и вашето семейство, в който всяко пространство е внимателно проектирано, за да отговори на нуждите на съвременния живот.
На разположение съм за всякакви въпроси и консултации, за целта се свържете с мен на телефон:
Георги Присадников
0890522227







