Директно от инвеститор - просторна къща със собствен двор и четири отделни спални в с. Здравец
Реф. 562
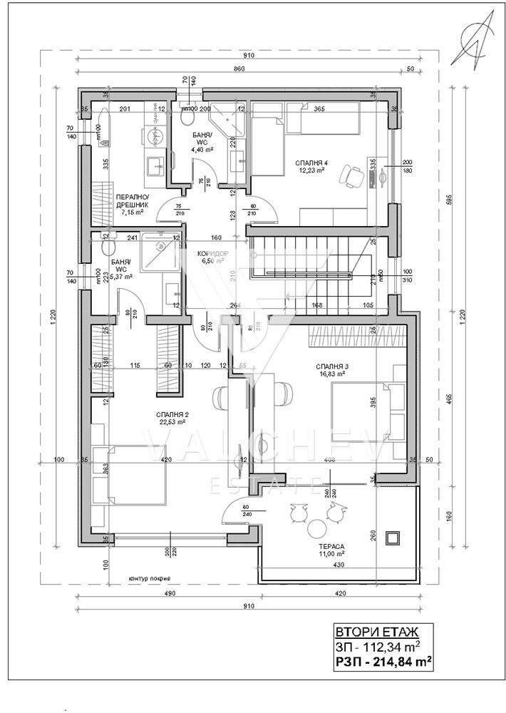
Имотът Представлява :Самостоятелна двуетажна къща със следното разпределение: Ет.1 се състои от широко входно антре, всекидневна с кухненски бокс, място за мека мебел и трапезария с размери около 40 кв.м. с излаз към покрита веранда, просторна спалня, баня с тоалет в едно, техническо помещение/ склад и килер към кухненския бокс. По вътрешно стълбище се стига до втория етаж на който са разположени три самостоятелни спални, едната от коите с дрешник и собствена баня с тоалет в едно, баня с тоалет в едно за етажа, голямо перално помешение и просторна покрита тераса.
Състояние : Имотът се издава по 'БДС'
Забележка : Приложените по-горе описания, снимки, скици, архитектурни разпределения и визуализации са предоставени от собственика, и имат за цел да Ви дадат максимално добра и идейна представа за общия вид и разпределението на имота !
Локация: имота е разположен в затворен комплекс от шест къщи, всяка от които със собствен двор в китното село Здравец. Село Здравец е идеално за еко туризъм, известно с чистия си въздух и красивата природа на това се дължи и името му. Мястото привлича любители на природата и активния отдих, а същевременно предоставя спокойствие и тишина. Пътят до там е в отлично състояние и наскоро ремонтиран, което осигурява бърз и удобен достъп до центъра на Варна само на 15 минути с кола.
VALCHEV ESTATE съдейства с всички необходими юридически и технически проверки на имота, организира всички етапи на сделката до нейното финализиране с нотариалното прехвърляне на имота.
VALCHEV ESTATE съдейства за отпускане на банков кредит при възможно най-добри условия за клиента!
Консултант недвижими имоти: Георги Вълчев - 0895 415523







