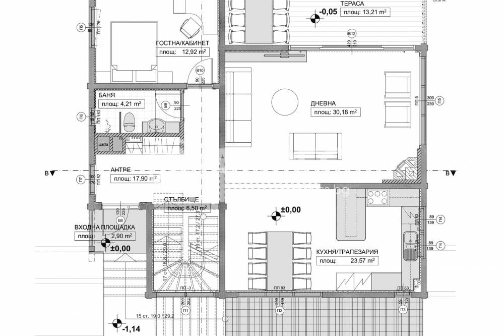
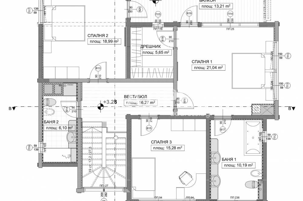
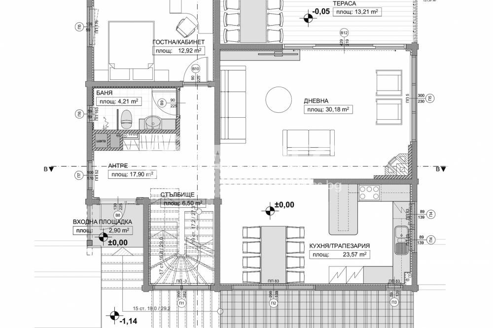
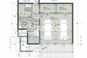
Предлагаме за продажба нова самостоятелна къща, завършена до ключ, напълно оборудвани бани, настилки във всички помещения и завуршени стени и тавани с вградено осветление. В сутерена са разположени: гараж за два автомобила, техническо помещение, складови помещения и перално с достатъчно място за сушене на дрехи. На същото ниво, но на открито има още две парко места пред къщата в страни от гаража. На първия етаж над сутерена са разположени: входно антре, коридор, просторна кухня с трапезария, всекидневна с камина, спалня за гости (може да бъде кабинет, киносалон и др.), самостоятелна баня с тоалетна и тераса веранда. На втория етаж са разположени: коридор, две бани с тоалетни и три големи спални, като едната има собствен дрешник и баня 10 кв.м. Две от спалните излизат на голя ма тераса на юг с гледка към Витоша.
Комплексът е разположен в тих район в полите на Витоша с бърз достъп до основни пътни артерии и до центъра на столицата.
Цената е без ДДС
Луксозни масивни къщи от най-съвременни и екологично-чисти материали. Облицовката на сутерена е от естествен камък, полиран с импрегнант против задържане на влага. Отопление и топла вода, посредством термопомпени системи въздух-вода. Инсталирана вградена прахосмукачка в стените на всеки етаж с централно тяло в гаража. Цената е с включени довършителни работи - Осветителни тела в баните, спалните на втория етаж и окачения таван на първия етаж; - Стълби завършени със стълбищен парапет от стъкло с дървена ръкохватка и масивни дъбови стълби. Започва от сутерена и завършва на втория етаж с парапет на емпорето; - Плочки в сутерен, на първи жилищен етаж и навсякъде в баните; - Трислоен паркет на втори жилищен етаж; - Баните до ниво годно за ползване (монтирани всички санитарии, включително вана в родителската баня, шкафчета под мивките, огледала); - Боядисване на всички стени в помещенията с боя за дърво или боя за гипсокартон; - Интериорни врати за цялата къща.
Единствен по рода си комплекс от ЕКО къщи, изграден изцяло в съответствие с най-съвременните стандарти за екологично строителство и здравословен живот.
Обади се сега и цитирай този код 462953







