ID 6881, Предлагаме за продажба новострояща се къща в местност Прибой, с перфектен достъп. Къщата е част от затворен комплекс с общо 8 къщи и парцел с площ 2750 кв.м. Стоителството на къщите е по две на калкан, като всяка една от тях е със собствен двор и паркоместа. Разпределението е както следва:
етаж 1 - просторно входно антре, дневна с кухнеска част, трапезария, мека мебел с френски прозорци - 40 кв.м., веранда - 23 кв.м., кабинет, стълбище за втори етаж
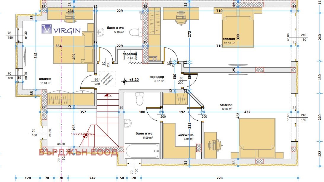
етаж 2 - две спални 18 и 20 кв.м. , баня с тоалетна, спалня 20 кв.м. със собствена баня и дрешник.
Строителната конструкция е изградена от здрави и устойчиви материали, като стомана, бетон и стъкло, които осигуряват не само стабилност, но и изчистен външен вид. Като за фасадните плоскости се предвижда каменна облицовка от тънък камък за първият етаж, еталбонд в дървесен растер и силикатна мазилка в бял и сив цвят за вторият етаж. Отворите по фасадите са предвидени от висок клас алуминиева дограма.
Нескриваема морска панорама!







