Ера Черно море предлага за продажба 4 новостроящи се къщи, в комплекс от затворен тип, в м-т Горна Трака, гр. Варна. Разработени са четири типа къщи с РЗП 225 кв.м. Къщите са с отлична конфигурация и са със следното разпределение:
Първи етаж: входно антре (13,70 кв.м.), дневен тракт с кухненски кът ( 53,10 кв.м.), баня с тоалетна (5,95 кв.м.), килер (2,45 кв.м.) и кабинет/спалня (14,80 кв.м.).
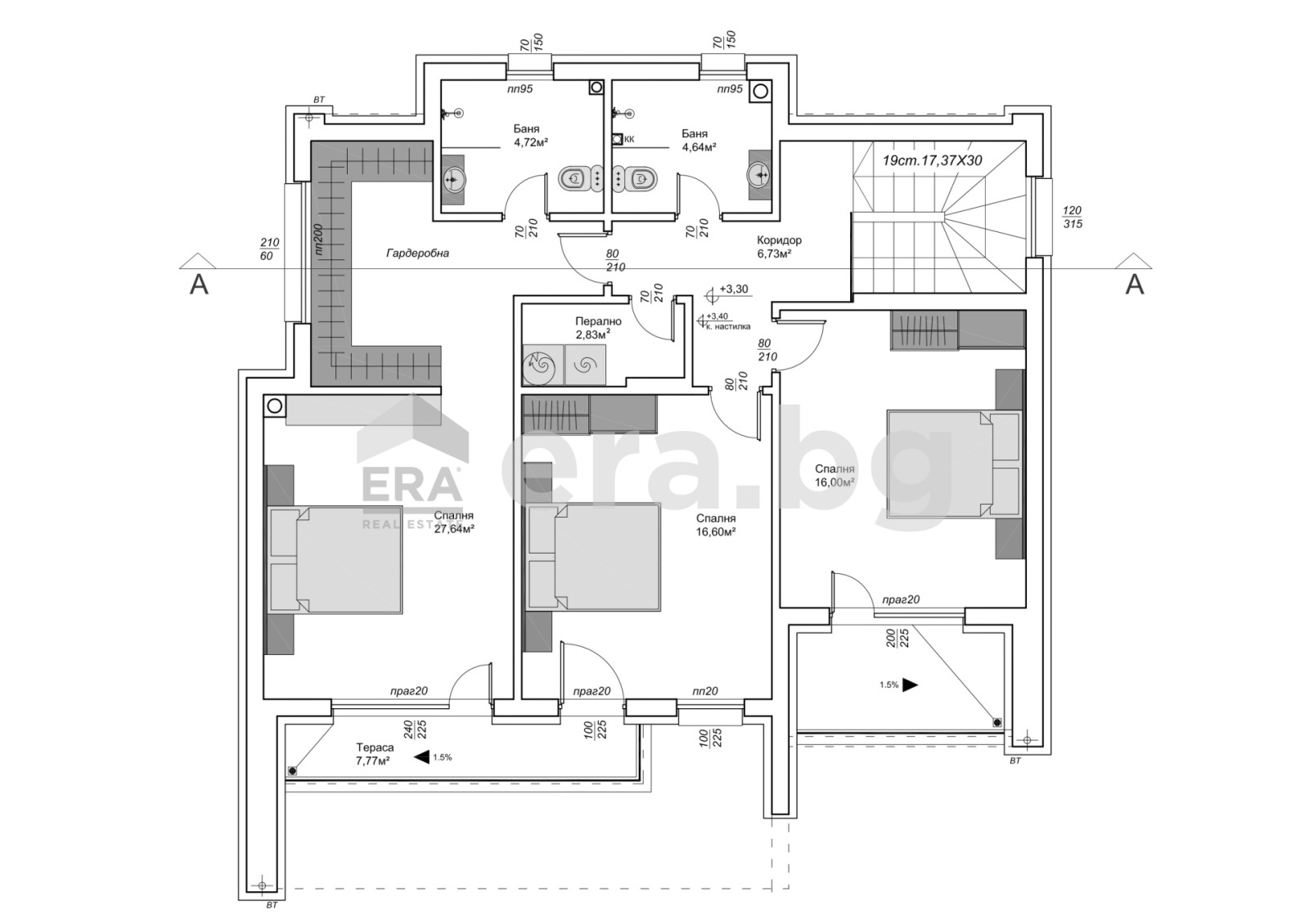
Втори етаж: коридор (6,73 кв.м.), спалня (27,64 кв.м.) с гардеробна и собствена баня с тоалетна (4,72 кв.м.) и излаз на тераса (7,77 кв.м.), втора спалня (16,60 кв.м.), трета спалня - (16 кв.м.) с лоджия (5,45 кв.м.), перално помещение (2,83 кв.м.) баня с тоалетна (4,64 кв.м.).
Изложение: юг-запад.
Къщите са разположени на парцел с площ от 2 282 кв.м., като на всяка една ще бъде разпределена реална част от земята.
Определената цена на имотите е 350 000 евро и 370 000 евро, в зависимост от позиционирането им на парцела.
Къщите се продават в завършен вид по БДС, като има опция за доплащане на изготвен интериорен дизайн.
При желание от страна на клиента, проектът може да бъде реализиран.
Къщите са на начален етап на строителство (разрешение за строеж).
Гъвкави схеми за плащане.
Достъпът до къщите е лесен по асфалтов път.
Имотът е подходящ както за живеене така и за инвестиция, поради непосредствената си близост до главни пътни артерии, автобусни спирки, супермаркети, детски градини, училища.







