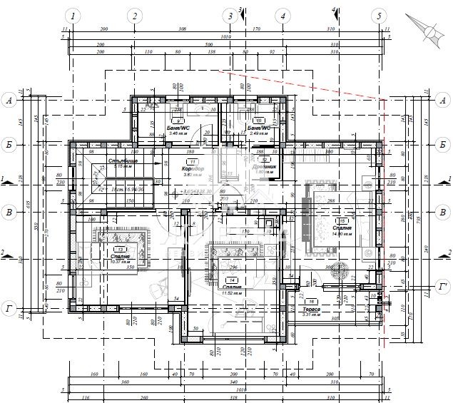
Агенция Живена предлага за продажба нова двуетажна къща, с три спални и гледка море от втори етаж. Намира се в Горна Трака, в района между к.к. Св.Св. Константин и Елена и кв. Виница, на около 2.5 км до морето и плажа. Имотът е с РЗП: 139 кв.м и следното разпределение: ПЪРВИ етаж - дневна с кухня и трапезария, баня с тоалетна, перално помещение/килер, веранда; ВТОРИ етаж - 3 спални, 2 бани с тоалетни, едната спалня с дрешник, баня и собствена тераса. Къщата е построена върху дворно място - ок. 300 кв.м. Има налични партиди за ток и вода, пречиствателна станция, 2 места за паркиране. В момента е на етап на строителство - преди Акт 16. Предлага се в състояние, завършено по БДС. Всеки момент се очаква въвеждане в експлоатация. Агенция ЖИВЕНА извършва необходимите проверки на имота и организира всички етапи на сделката до нейното финализиране. Оказваме съдействие за отпускане на банков кредит. Оферта 6743







