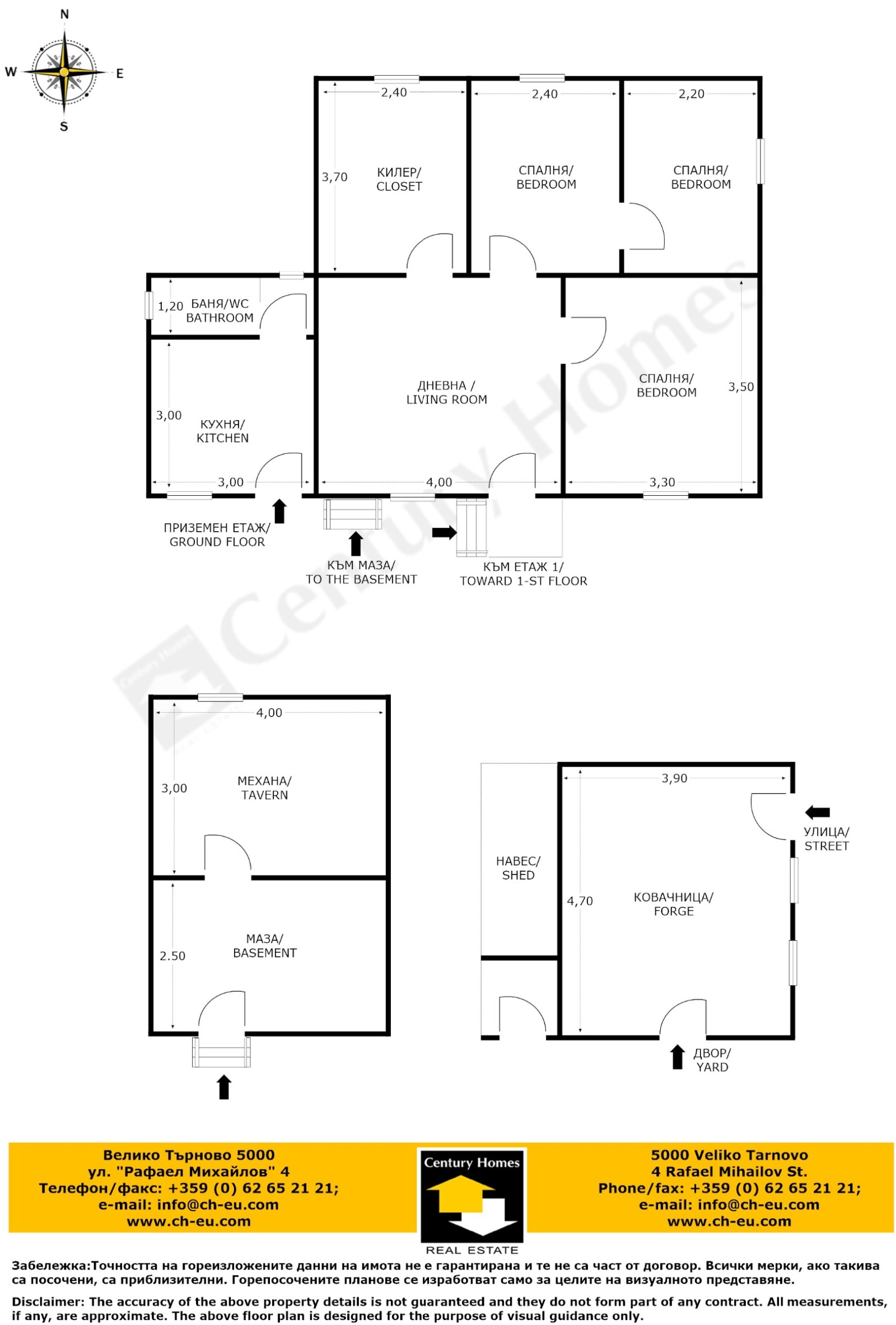
Къщата е със застроена площ от 87 кв. м., разпределени на три нива, достъпни откъм двора.
На приземният етаж е разположена кухня, от която се влиза в мокро помещение и баня с тоалетна.
Няколко стъпала надолу водят към маза, преминаваща в механа, а няколко стъпала нагоре отвеждат до първия етаж. На него са разположени дневна, три спални и килер.
Къщата се продава необзаведена, с дървени врати, прозорци и подова настилка.
Дворът е равен - 308 кв.м., с разположени в него навес, стопанска постройка (24 кв.м.) и работилница, последната от които е използвана за ковачница.
Достъпът до имота е целогодишен, по асфалтов път. В близост има хранителен магазин.
Драганово е добре развито село, с множество магазини, църква, стадион, футболен отбор и читалище. Намира се на десния бряг на река Янтра, което дава възможност за риболов и почивка.
За да разгледате виртуален тур, моля копирайте и поставете линка във Вашия браузер
ВИРТУАЛЕН ТУР: https://app.cloudpano.com/tours/uwA7cB1_W
РЕФ. :120335
Виж всички обяви в century21homes.bazar.bg или тук
        
       
         
         
         
         
         
         
         
         
         
         
         
         
         
         
         
         
         
             
             
             
             
             
             
             
             
             
             
             
             
             
             
             
             
            






