Локацията е тиха и спокойна, далеч от градския шум, но в близост до всички удобства на града.
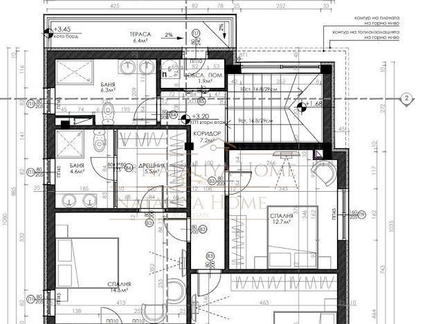
Къщата е с РЗП 196 кв.м и се състои от:
Етаж 1: антре, широка всекидневна с кухня и трапезария с излаз на веранда и двор, склад, баня/WC, вътрешно стълбище към втория етаж;
Етаж 2: три спални, дрешник, две бани/WC и две тераси с гледка към морето и Бургаския залив.
Дворът е с площ от 360 кв.м, с възможност за изграждане на басейн.
Къщата се предлага на тапа, като предлагаме завършване 'До ключ' с материали по избор на клиента.
Разполага с паркомясто.
Фасадата ще бъде с модерна и елегантна визия, изградена с висококачествени материали, висок клас топлоизолация и дограма, френски прозорци и гледка към морето.
Локацията открива разкошни панорами към красивия залив на Бургас, качество и комфорт гарантирано от високото ниво на строителство и най-добрите материали вложени в създаването на Вашия луксозен дом на морето.
Комплексът се състои от 7 самостоятелни къщи, които са проектирани за целогодишно живеене.
Без такса поддръжка.
Акт 16 се очаква до края на 2025г.
Виж всички обяви в nataliyahome.bazar.bg или тук
        
       
         
         
         
         
         
         
         
         
         
             
             
             
             
             
             
             
             
            






