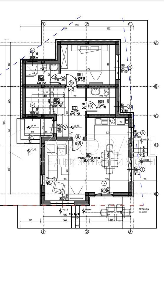
Оферта 4496. Продаваме красива еднофамилна къща в строеж в с. Стряма. Разположена е в собствен парцел от 411 кв.м, с РЗП от 184 кв.м и е със следното разпределение:
Първи етаж - входен коридор, много просторна и слънчева всекидневна с кухненска и трапезарна част, самостоятелна спалня със собствена баня с тоалетна, още една тоалетна.
Втори етаж етаж- три големи спални /едната от които 18,5 кв.м/, две бани с тоалетни, три тераси. Къщата в момента е на втора плоча и ще бъде напълно завършена до края на годината. Издава се по БДС, на шпакловка и замазка, с използване на висок клас строителни материали. Парцелът е ограден с масивна ограда с ажурна част към пътя. Има опция за довършвани до ключ. Къщата е с канализация, на асфалтов път и е с отлична локация - близо до центъра на селото. Самото населено място е много добре устроено, с детска градина, училище, магазини за хранителни стоки, аптеки и заведения. Отстои на 30 минути от Пловдив, а близостта до Икономическа зона Раковски го прави и привлекателно място за младите хора. Снимката на готовата къща е проект, напълно изпълнен от същия строител. За контакт и повече информация: Тоня Минчева 0886758787




