Имота е ситуиран в собствен двор от 500 кв.м с РЗП от 180 кв.м.
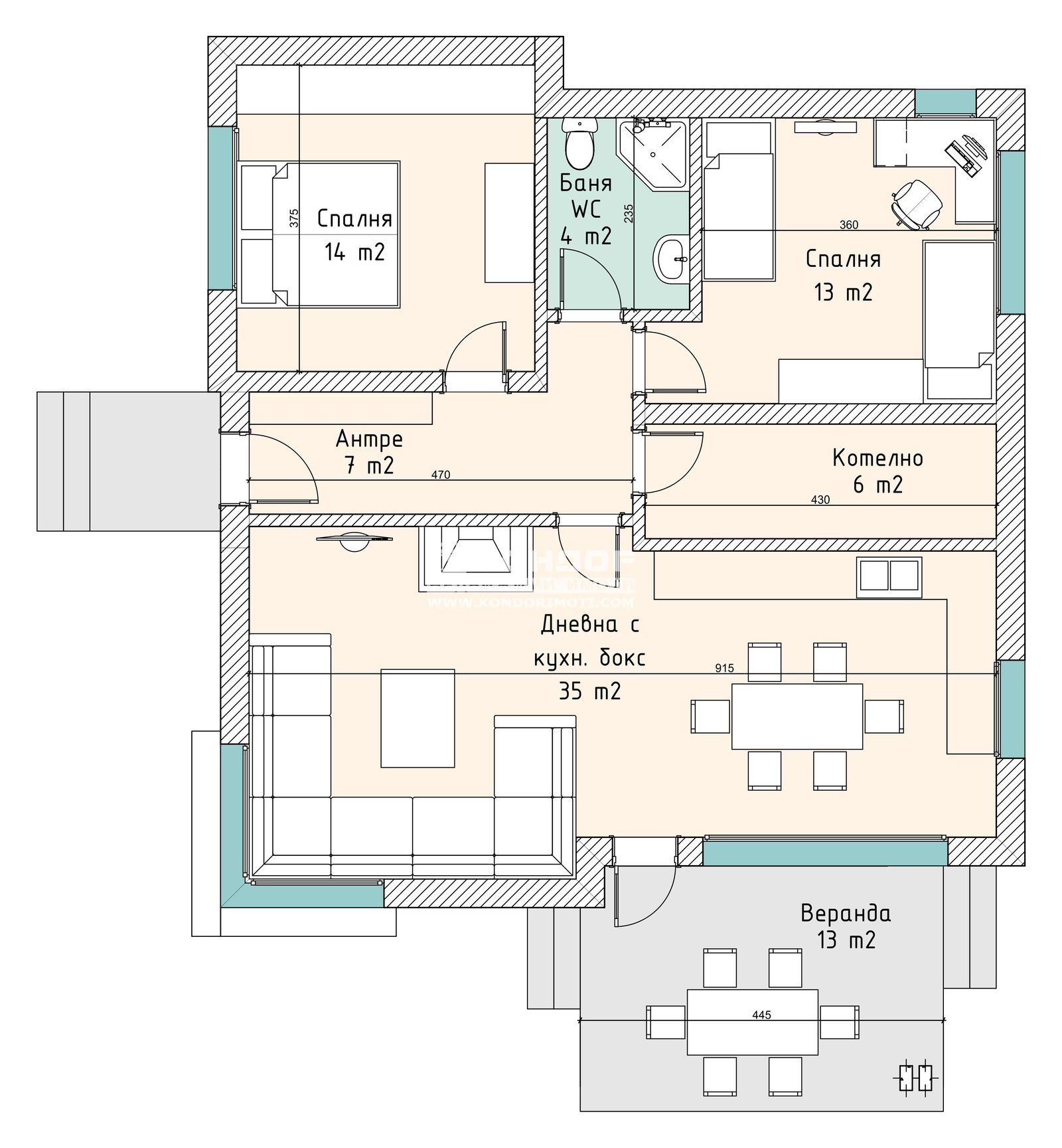
Жилищната площ има следното функционално разпределение: просторна дневна с трапезария и кухненска част, имащи излаз на открита веранда, спалня , санитарно помещение, складово помещение, което може да се използва и като котелно, ниша за вграден гардероб и входно антре.
На второто ниво са разположени три спални помещения с баня и тоалетна
Паркирането е подсигурено от две паркоместа, обслужващи се от автоматична секционна врата. Достъпа до имота е изцяло по асфалтов път и разполага с канализация. Строителството на къщата се изпълнява по съвременни технологии, като се използват строителни материали от най-висок клас. Градината се подравнява грубо и се оставя за по-нататъшно озеленяване и оформяне от новия си собственик.
Приложено е примерно 3D изображение със сравнителна близост до реалната фасада.
Агенцията съдейства за банково финансиране на преференциални условия!ВИЖТЕ ОЩЕ ИЗГОДНИ ОФЕРТИ НА https://www.kondorimoti.com/ С ЕЖЕДНЕВНА АКТУАЛИЗАЦИЯ!
Виж всички обяви в kondor.bazar.bg или тук







