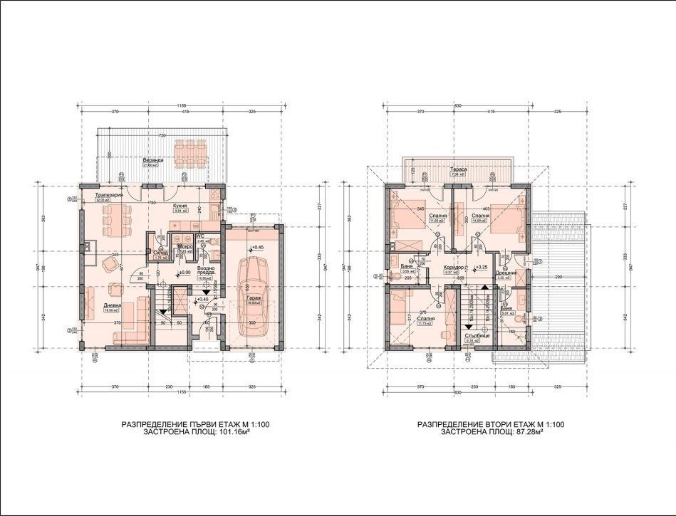
Оф. 79838 Предлагаме Ви новопостроена къща в с. Марково с РЗП от 189 кв.м. Архитектурата и функционалното й разпределение осигуряват комфорт и олицетворяват спокойствие в съвременния градски начин на живот.
Къщата се предава в степен на завършеност по БДС.
Двора е с площ от 298 кв.м., с гараж с връзка към къщата. Имота е свързан към канализацията на селото. Услугите, които предлага нашата фирма са - Безплатни юридически консултации, съдействие при одобрение на ипотечен, потребителски и всякакъв друг кредит, при възможно най-добри условия за клиента. Работим с всички банки. Безплатни огледи. За контакти: Георги Ветин 0898456999







