COMPLEX OF HOUSES DUNAV
Еднофамилни редови къщи.
Вид на строителство:
Конструкцията е монолитна, стоманобетонова, състояща се от ст.бет.плочи, греди, колони и противоземетръсни шайби, с тухлени стени от керамика /червена тухла/; стаи и коридори: стени на гипсова мазилка, тавани ГК с шпакловани фуги, под на всички помещения замазка;
Дограма:
Прозорци Алуминиева и/или PVC с прекъснат термомост с цвят, троен стъклопакет с покритие, с газ аргон, 5- камерна, немски обков; външна входна врата метална блиндирана;
Ел. и ВиК инсталации изградена напълно по проект:
Енергоспестяващи мерки и детайли на всички външни повърхности на сградата с топлоизолационни слоеве и материали подробно разработени в част Енергийна ефективност
Между отделните жилища е предвидена звукоизолация по детайл на производителя
Пред дневната от западната страна на фасадата са предвидени за поставяне леки биоклиматични слънцезащитни перголи.
От източната страна на сградата е предвидено поставянето на лека слънцезащитна конструция за покритие над местата за паркиране.
Архитектурния облик на сградата е в два цвята бяло и дървесно кафаво
Озеленяването е със засяване на тревна смеска и частично с декоративна настилна от тревна фуга, вкл. растения като жив плет.
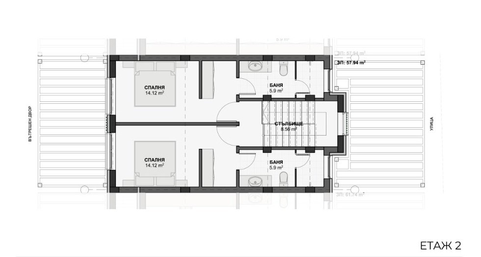
Къщите са с РЗП по 171кв.м. и 181кв.м.
За повече информация и разпределение на етажите заповядайте в офиса на фирмата Инвеститор.
Начало на строителни дейности: 04.2024 година
Въвеждане в експлоатация: 12.2025 година
Цени и планове за плащане зависят от етапа на строителство към момента на сключване на договор за продажба.
Виж всички обяви в dunav.bazar.bg или тук
        
       
         
         
         
         
         
         
         
         
             
             
             
             
             
             
             
            



