Разположени в тих и спокоен район, къщите съчетават модерна архитектура с удобствата на съвременния живот. Всяка къща разполага с просторна дневна, 3 спални, 3 бани и гараж за две коли. Идеални са за семейства, които търсят комфорт и уединение, близо до природата и само на 20 минути от София.
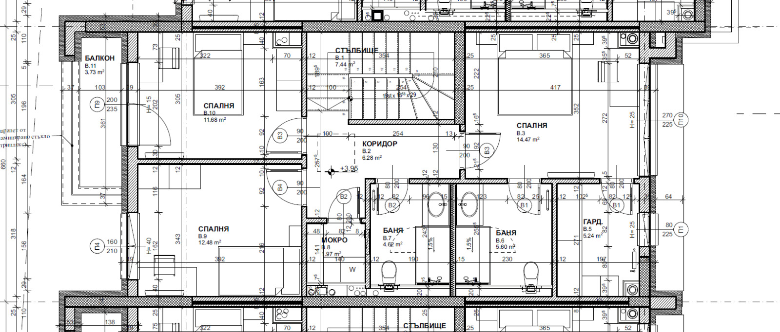
Функционалното разпределение е както следва:
Сутерен - гараж за два автомобила, входно антре, стълбище и техническо помещение.
Първи етаж - дневна с кухня, от която има достъп до собствен озеленен двор, кабинет/спалня, склад, WC и тераса.
Втори етаж три спални, едната със собствен дрешник и баня, мокро помещение, втора самостоятелна баня и балкон.
Външни и вътрешни стени изградени от керамични тухли WIENERBERGER.
Фасадата е висок клас топлоизолационна система на BAUMIT от EPS(140мм) и частично облицовка от декоративна фасада (фугирана зидария).
Дограмата e Schüco със седем камерен профил и троен стъклопакет с нискоемисионно / високоенергийно стъкло.
Входните и гаражните врати са Хьорман.
Гаражните врати са оборудвани с автоматика Хьорман.
Конструкцията на сградата е монолитна, стоманобетонна. Конструктивната височина на сутерена е 3,00 м, на първия етаж- 3,15 м, а на втория- 3,00 m .
Подземното ниво е хидроизолирано с швейцарска хидроизолация VANDEX.
Покрива е термоизолиран с XPS 15-30см, хидроизолиран с висок клас хидроизолация и има излаз през покривен прозорец VELUX. Отводняването е с воронки на HL.
Баните са с положена хидроизолация и с монтирани вградени структури GROHE за тоалетна чиния.
За подготовката на битова гореща вода, за всяка къща, се предвиждат инсталация за соларни панели като допълнение към основната отоплителна инсталация.
Отоплението и климатизацията са решени с подово отопление в комбинация с конвектори за охлаждане и отопление.
Цени: От 299999 до 419 000 евро в зависимост от площa.
Срок за завършване 2025г.
Виж всички обяви в propertyone.bazar.bg или тук
        
       
         
         
         
         
         
         
         
         
             
             
             
             
             
             
             
            


