Имотът представлява 993 кв.м. парцел с 1000 кв.м. застроена площ и се състои от сутерен, два просторни и високи жилищни етажа и един мансарден етаж.
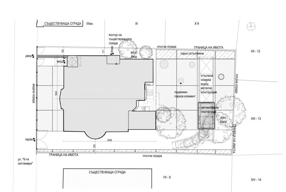
Инвестиционните ни намерения са за реконструкция и реставрация на сградата съобразно съвременните изисквания за функционалност на представителна жилищна резиденция в центъра на града. Одобреният инвестиционен проект включва разполагане на сутерена в пълните граници на имота, а към дъното на имота от изток се предвижда остъклена автомобилна платформа.
Съществен елемент от проекта е запазването на автентичния вид на двете емблематични фасадни стени, западна и южна, възстановявайки оригиналната геометрия на мансардния покрив, както е проектирана от арх. Кирил (Киро) Маричков.
Ref. 6726
Виж всички обяви в bulgariasir.bazar.bg или тук
        
       
         
         
         
         
         
         
         
         
         
         
         
         
         
         
         
         
         
             
             
             
             
             
             
             
             
             
             
             
             
             
             
             
             
            






