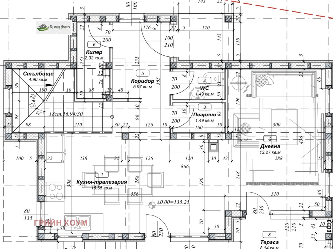
- Къщата е на 2 етажа и е с плош от 138 кв.м.
На първия етаж се намират просторен дневен тракт, кухня с трапезария и самостоятелна тоалетна.
На втория етаж са разположени 3 спални, 2 бани, дрешник и тераса.
Къщата се издава в състояние по БДС. Дворът е с площ от 340 кв.м. Има възможност за договаряне на завършване до ключ. Възможност за разсрочено плащане.
За повече информация и въпроси на посочения телефон.
Виж всички обяви в greenhomebg.bazar.bg или тук







