**Основни характеристики на имота:**
- **Местоположение:** с. Гняздово, област Кърджали на самият бряг на язовира.
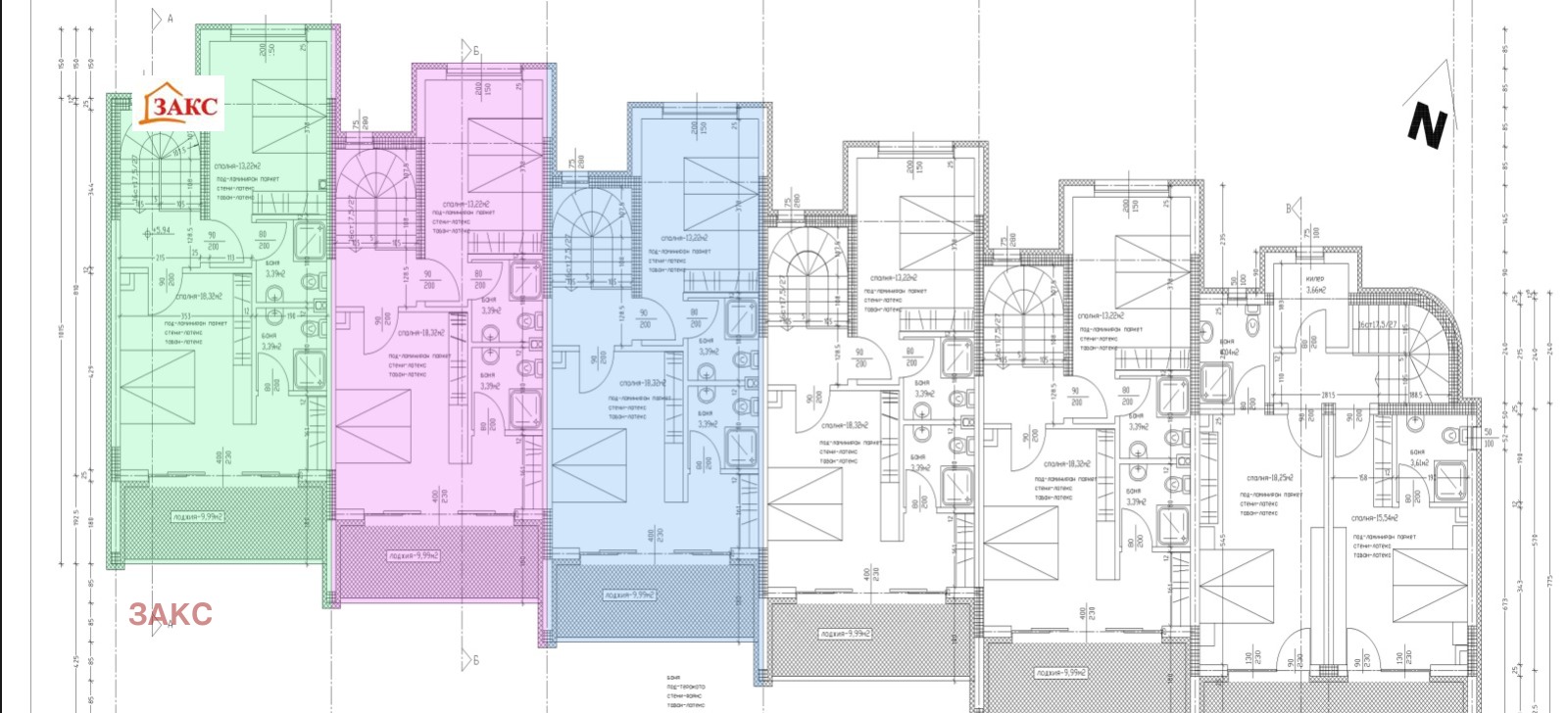
- **Вид на имота:** Къща
- **Дата на построяване:** 2026 г.
- **Цена:** 329,000.00
- **Обща площ:** 251 кв.м.
**Допълнителни предимства на имота:**
- **Модерен дизайн:** Съчетание на съвременни архитектурни линии с функционално разпределение на пространствата.
- **Просторни помещения:** Къщата разполага със светли и просторни стаи, подходящи за голямо семейство или за организиране на гостоприемни събития.
- **Висококачествени материали:** Използвани са най-добрите строителни материали, гарантиращи дълготрайност и издръжливост на имота.
- **Голяма градина:** Просторен двор с озеленена градина, който предоставя възможност за отдих и развлечения на открито.
- **Съвременни удобства:** Вградени съвременни технологии, включително система за подово отопление, климатизация и интелигентно управление на дома.
- **Гараж и паркинг:** Включен е просторен гараж и допълнителни паркинг места за гостите на имота.
- **Спокойна и тихо район:** Идеално за тези, които търсят спокойствие и връзка с природата, далеч от градската суматоха.
Не пропускайте възможността да станете собственик на този великолепен имот, който съчетава модерни удобства с уют и спокойствие. За допълнителна информация и организиране на оглед, моля свържете се с нас на посочените контакти.
Виж всички обяви в zaks.bazar.bg или тук
        
       
         
         
         
         
         
         
             
             
             
             
             
            






