Translations in other languages:
All real estate ads published on imot.bg have been translated into English and published on the partner site
Получихте нова обява по филтър





Промяна на цена на наблюдавана обява


стара цена
нова цена
imot.bg – обяви за продажби и наеми на имоти
Сайт за имоти №1
Translations in other languages:
All real estate ads published on imot.bg have been translated into English and published on the partner site
ДОБАВИ ОБЯВА Редакция на обява
Начало Публикуване Търсене Нови сгради Агенции Новини Кредити + Още... Моят имот
Продава КЪЩА
област София, гр. Костенец
27 000 €
52 807.41 лв.

(643 €, 1 257.60 лв./m2)
Цената е без ДДС
История на цената
Коригирана в 16:09 на 25 октомври, 2025 год.
Обявата е посетена 6419 пъти.
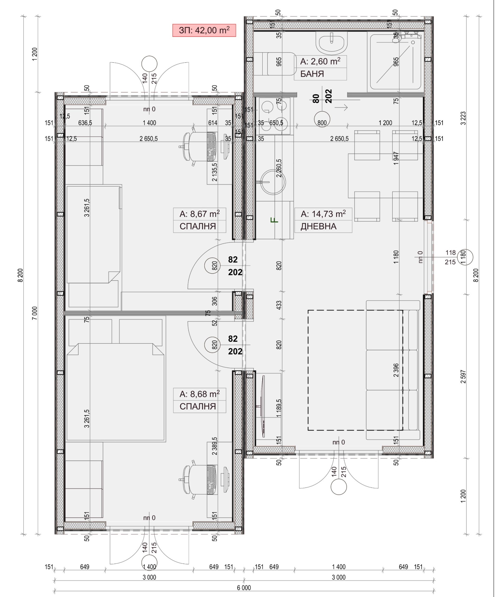
Площ:
42 m2
Двор:
42 m2
Строителство:
Сглобяема конструкция, 2024 г.

Описание на имота:


Продава се 42 кв.м. къща, готова за монтаж на Ваш парцел. Къщата се състои от хол с кухня, баня и тоалетна и две спални /подробно разположение на помещенията можете да видите в приложената скица/. Къщата може да бъде монтирана върху бетонен фундамент, ивичен фундамент или стъпков фундамент. Разполагаме с оборудване за монтаж на фундамент от земни анкери. Къщата може да бъде монтирана в рамките на 8 седмици. Посочената цена е за базовия Модел XL - конструкция, изцяло завършен отвън - вентилирани фасади и покрив, дограма, топлоизолация. Има възможност да бъдат направени всички видове довършителни дейности, включително и обзавеждане.
За повече информация посете сайта ни www.shelter.bg
Виж всички обяви в shelter.bazar.bg или тук
Особености
Сглобяема конструкция
За контакт:
0888042410
Агенция:
ШЕЛТЕР
0888042410
ШЕЛТЕР logo
В imot.bg от 2024 г.
shelter.imot.bg
Адрес:
област София, гр. София, ул. Казбек 30
http://shelter.bg
ИЗПРАТИ ЗАПИТВАНЕ
ИЗПРАТИ ЗАПИТВАНЕТО

Продава КЪЩА
област София, гр. Костенец
Обява: 1j171675605471350

27 000 €
52 807.41 лв.
История на цената
(643 €, 1 257.60 лв./m2)

Цената е без ДДС
ЗАПАЗИ ОБЯВАТА

Местоположение: област София, гр. Костенец

Виж още имоти от гр. Костенец или още Къщи в гр. Костенец, София
Още обяви в imot.bg
КОНТАКТИ | SMS КОДОВЕ | СТАТИСТИКА | ПОМОЩ | ОБЩИ УСЛОВИЯ | РЕКЛАМА | ТОП ОФЕРТА | Въпроси и предложения към imot.bg
Резон Медия | Имоти | Автомобили | Работа | Новини | Обяви | Преводи и легализация 2002-2025 ® Copyright imot.bg
© imot.bg ползва и препоръчва хостинг услугите на Bulinfo.net
Следвайте ни в: