ЕРА Вива с удоволствие ви предлага перфектната еднофамилна къща в подножието на планина Родопи с панорамни гледки и едновременно близо до града и неговите удобства. Имотът е ситуиран в най-голямото родопско село Първенец с РЗП 277 кв.м и двор 350 кв.м
Къщата е с централен водопровод и канализация и е изпълнена с материали от най-висок клас. В непосредствена близост се намират супермаркет, ресторанти, търговски обекти, детска градина, училище. Имотът включва два основни жилищни етажа плюс мансарден етаж с площ около 40 кв.м, (който може да бъде ползван за кабинет, артстудио, детски кът, фитнес зала и много други) с прозорци тип табакера. Разпределението е следното:
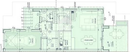
Етаж 1 Входно антре, просторен хол с трапезария и кухненски бокс, излаз на самостоятелен двор и веранда, баня с тоалетна, сервизно помещение, гараж с топла връзка, парко място.
Етаж 2 стълбище, коридор, родителска спалня със собствен санитарен възел, дрешник и тераса, втора спалня с баня и тоалетна, излаз на тераса и още една спалня.
Изградена е система за отопление и охлаждане и топла вода с термопомпа, изведени са разводки и комин, може да се обособи и камина.
Жилището се издава по БДС стандарт: стени шпакловка, под - замазка, изградена ВиК система, ел.инсталация с монтирани ключове, контакти и ел. табла, окабеляване за телефон и интернет, видеодомофонна система, висок клас дограма, входна блиндирана врата и напълно завършени тераси. Инсталирани тръби за подово отопление и монтирана ел. врата с дистанционно у-е за гаража.
Инвестицията в недвижим имот е най-сигурният начин да съхраним парите си от инфлационно обезценяване. Направете го сега. ЕРА България е независим кредитен посредник към БНБ и предоставя безплатна консултация и съдействие за най - изгодна оферта спрямо Вашия профил при финансиране на избрания от Вас имот. ЕРА може да договори отлични условия за инвестиционните ви намерения, както и цялостна юридическа проверка на имотите, които предлагаме.
Оферта 5801323







