Unique Estates представя къща за проджаба в луксозен затворен комплекс от 8 редови къщи, разположен в най-живописната част на курорта Св. св. Константин и Елена. Тук са съчетани богато историческо наследство, изобилие от природни красоти и лечебни минерални извори.
Към всеки дом има басейн и прекрасно озеленено пространство, създавайки уникална обстановка, където можете да се насладите на приятни моменти и отдих.
Акт 16.
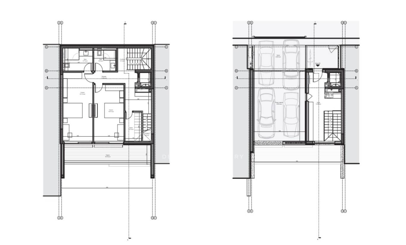
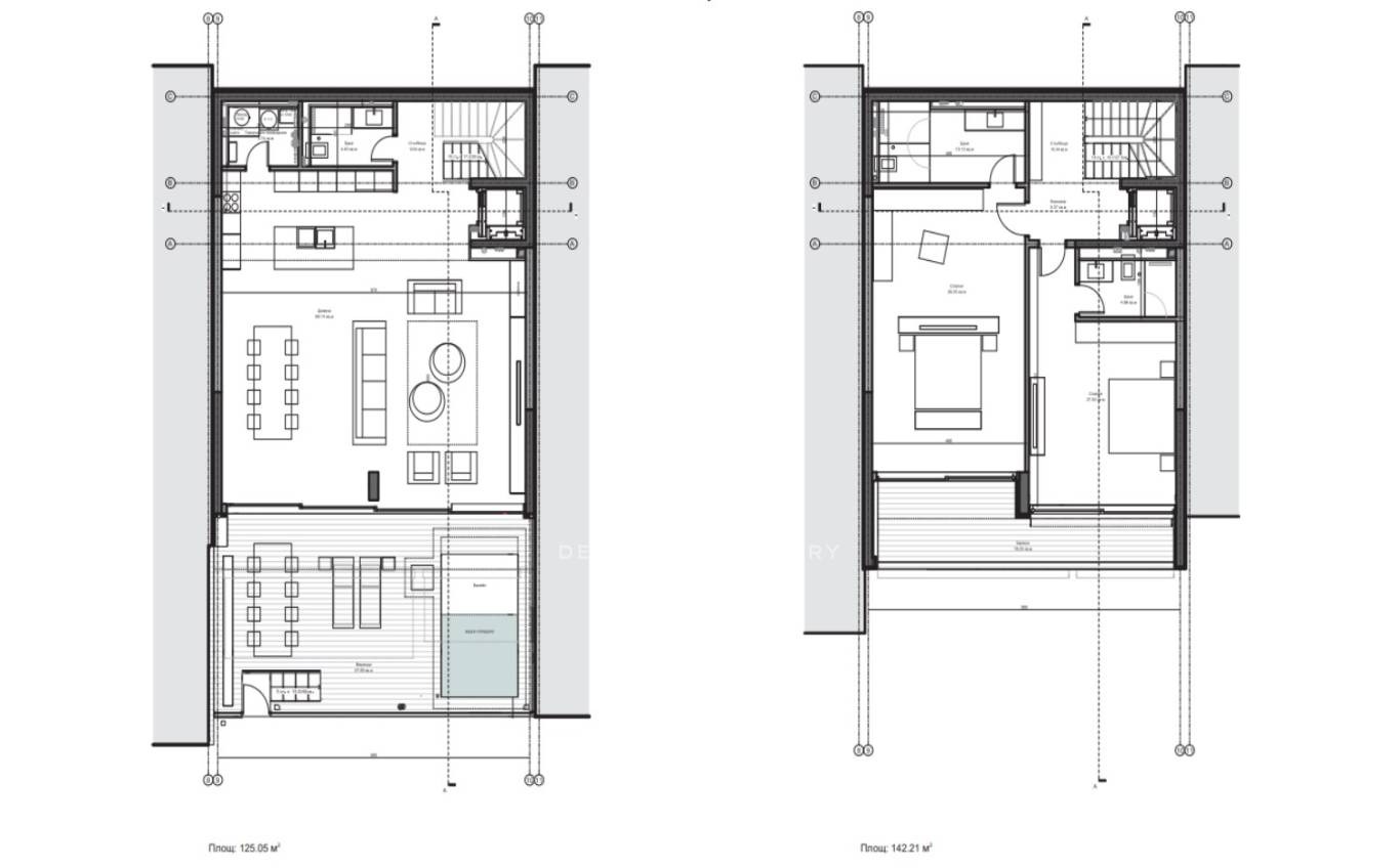
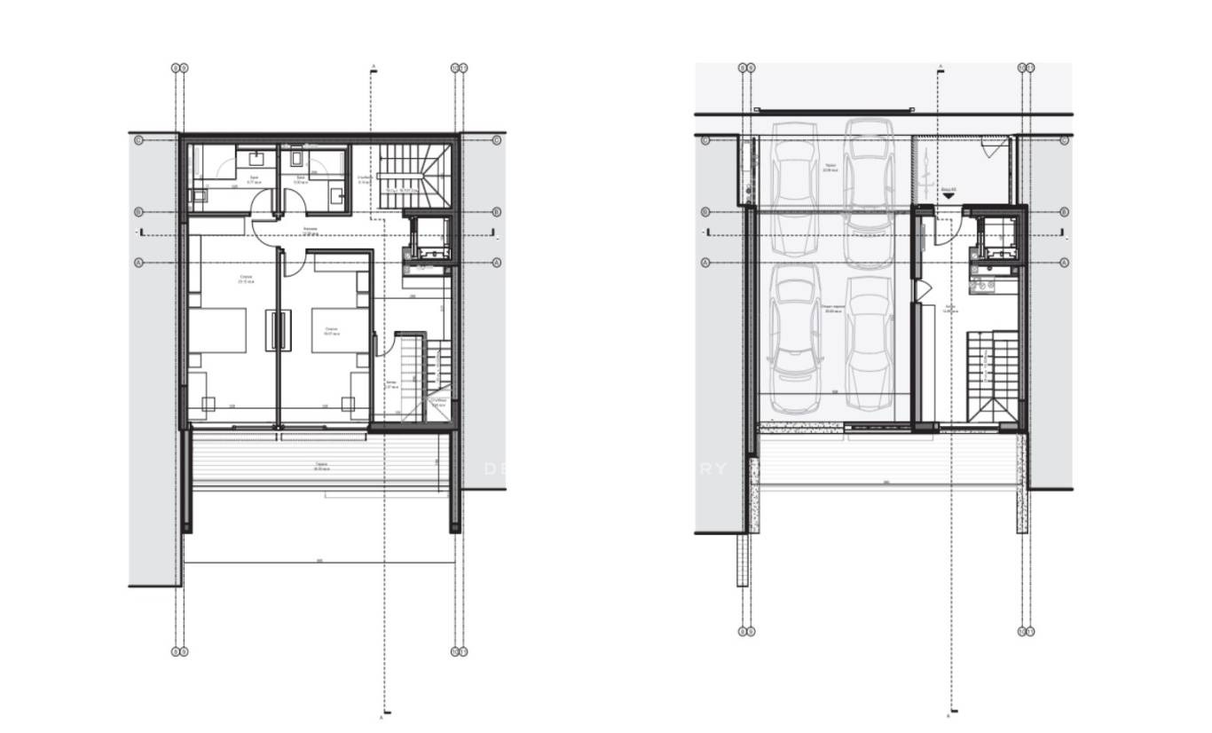
Къщата е изградена с южно изложение и се простира на 4 нива, предлагайки прекрасна панорамна гледка към морето. Разполага с асансьор и предлага 4 спални, 4 бани, просторна дневна с трапезария, модерна кухня и уютна веранда с басейн.
Включени са гараж за два автомобила и две външни паркоместа. Ref. ID:22526






