Директно от инвеститора! Без комисионна от купувача!
Самостоятелни къщи в комплекс, БЕЗ ТАКСА ЗА ПОДДРЪЖКА! В близост до плаж 'Каваци'!
Представяме Ви ексклузивен комплекс от луксозни самостоятелни къщи, разположен на 350 метра от къмпинг Каваци край град Созопол. Самия плаж е само на 5 минути пешеходно разстояние и е известен със своята красота, кристално чисто морско дъно и фин златист пясък. Комплексът граничи с борова гора, която се явява защитена природна територия с еко пътеки за разходки. Обстановката създава усещането за спокойствие и релаксация от чуруликащите птички и чистия въздух.
Инвестицията в комплекс от този тип и с това местоположение се счита за уникална възможност, която гарантира стабилно капиталовложение. Цените на къщите са на разумна и достъпна цена за всеки, който би желал да се радва на лукс близо до природата и морето.
Затвореният комплекс се състои от 9 самостоятелни урегулирани поземлени имота. Всеки с квадратура около 500 кв.м.. Къщите разположени в тях са двуетажни със самостоятелни дворове ориентирани към гората и с паркомясто откъм улицата. Предвидено е богато озеленяване, осигурявайки уединение с жив плет от вечно зелени растения.
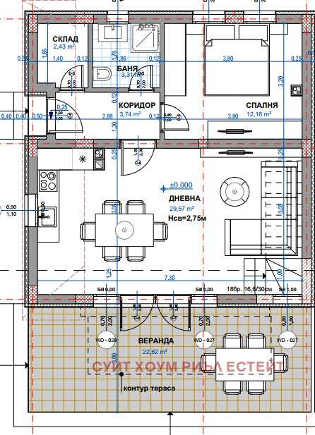
Разпределение: Вила 5A
Къщата е разположена в дворно пространство от 240 кв.м. и е с РЗП от 122.50 кв.м + 22.60 кв.м. веранда.
Състои се от:
1-ви етаж: ЗП - 62.50 кв.м. разпределени в: Дневна зона с обособен кухненски бокс, спалня, баня със санитарен възел, мокро помещение, входно антре и просторна веранда - 22.60 кв.м.;
2-ри етаж: ЗП - 60 кв.м. разпределени в: Родителска спалня със самостоятелна баня и тераса, втора спалня, отделна баня със санитарен възел, коридор.
Степен на завършеност: на тапа. Предвиден Акт 16 2026 г.
Защо да закупите къща в комплекса
- Въздухът на това място, който е смесица от морски бриз и чист горски въздух е много подходящ за деца, възрастни или хора със заболявания на дихателните органи поради лечебният ефект и релаксиращото въздействие.
- Разположение само на 350 метра от плаж Каваци - един от най-красивите и атрактивни плажове по Българското Черноморие.
Граничи с борова гора, което допринася за уюта на отдиха Ви.
- Затворен комплекс от самостоятелни къщи със съвременна и стилна архитектура, отлично вътрешно разпределение, осигурени паркоместа към всеки имот, голямо дворно уединено пространство.
- Висококачествено строителство с луксозни материали.
- Строителна компания с безупречна репутация.







