Компания X представя на Вашето внимание къща в с.Първенец.
МЕСТОПОЛОЖЕНИЕ:.Комплексът се състои от 17 еднофамилни къщи, всяка от които е в отделно УПИ.Имате уникална възможност да изберете едноетажни или двуетажни,с различна големина на двор и РЗП. В проектирането на всяка една от къщите сме вложили време и внимание, за да изпълним и задоволим и най-малките Ви нужди.
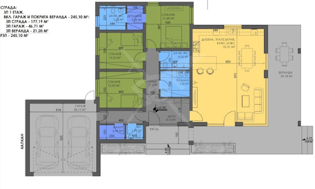
РАЗПРЕДЕЛЕНИЕ: Къщата разполага с площ от 245кв.м.дневна с трапезария, тоалетна,три спални,две бани с тоалетна,тоалетна,перално помещение,килер,веранда. Дворно място за ползване 510кв.м ,двоен гараж - 46,714 кв.м.
СЪСТОЯНИЕ: В строеж.
Заповядайте да Ви го покажем. Използвайки нашите услуги Вие ще превърнете закупуването на новия си дом в едно приятно изживяване, ще получите персонален консултант, съдействие при кандидатстване за кредит от всички банки в България, интериорни дизайнери и екип, който да се погрижи за нужните документи по Вашата сделка. На Ваше разположение сме всеки ден, от понеделник до неделя от 09:00 до 20:00ч. Възползвайте се от безплатна консултация в наш офис, където ще ви спестим време и ще ви запознаем с всички актуални имоти в България, отговарящи на Вашето търсене. Свържете се с нас на 0887779990 /на цената на един градски разговор/ или на 0884060990 и цитирайте кода към имота523-18450







