тел: +359 895 352 522
e-mail: [email protected]
www.simeon131.bg
Предлагаме на вашето внимание самостоятелна сграда с офис помещение, четири жилищни етажа, подземен паркинг, собствен асансьор и дворно пространство в централната част на град София. Предложението е директно от строителя.
Сградата е разположена непосредствено до 18-то Средно Училище Уилям Гладстон на ул. Странджа.
Собствен двор с размер 32, 92м2. Допълнително собствениците на сградата имат достъп до 800м2 затворено парково пространство.
Ниво минус 1 разполага с 3 броя парко места, с възможност за допълнителна покупка на парко места. Паркингът разполага с вода и електричество за зареждане на електро автомобили. На ниво -1 е разположено складово помещение състоящо се от 3 отделни склада.
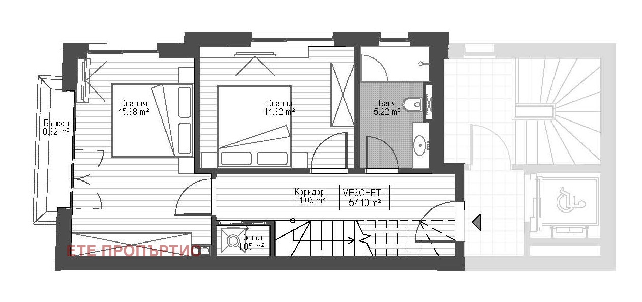
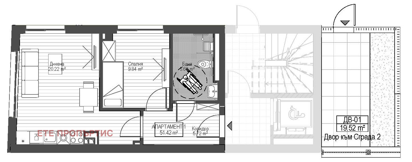
Функционално разпределение с възможност за промяна по време на строителството. Допълнително при желание на клиента, могат да бъдат извършени и довършителни работи.
ДИРЕКТНО ОТ ИНВЕСТИТОРА
За контакт:
тел: +359 895 352 522
e-mail: [email protected]
www.simeon131.bg







