Референтен номер: 30777 - Отговорен брокер: Мария Маринова
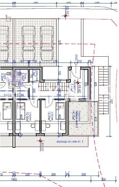
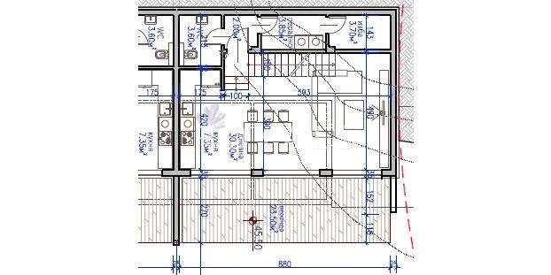
ПАНОРАМА! ПРОСТОР! ПЕРФЕКТНА ЛОКАЦИЯ! ЗА ЦЕЛОГОДИШНО ЖИВЕЕНЕ! Агенция за недвижими имоти ROYALS Ви представя нова къща с три спални в м-ст Ален мак, гр. Варна. Къщата е на три етажа и се състои от: Първо ниво - антре; дневна с кухня и трапезария (38 кв.м); тоалетна; перално помещение; склад; голяма веранда, с излаз от дневната; Второ ниво - две спални (12 кв.м); баня с тоалетна; дрешник и голяма панорамна тераса; Трето ниво - голяма спалня, с прекрасна панорама (24 кв.м); дрешник; баня с тоалетна; килер; балкон. Къщата е част от много малък комплекс от четири къщи, всяка от които е ориентирана към морето и разполага с по две паркоместа и самостоятелно дворче пред верандата и дневната. Дворът е с площ от 232 кв.м
Предимства: отличен асфалтов достъп; на 5 минути пешеходно разстояние от плажа; тиха, екологична среда, ново висококачествено строи
Виж всички обяви в royalsbg.bazar.bg или тук







