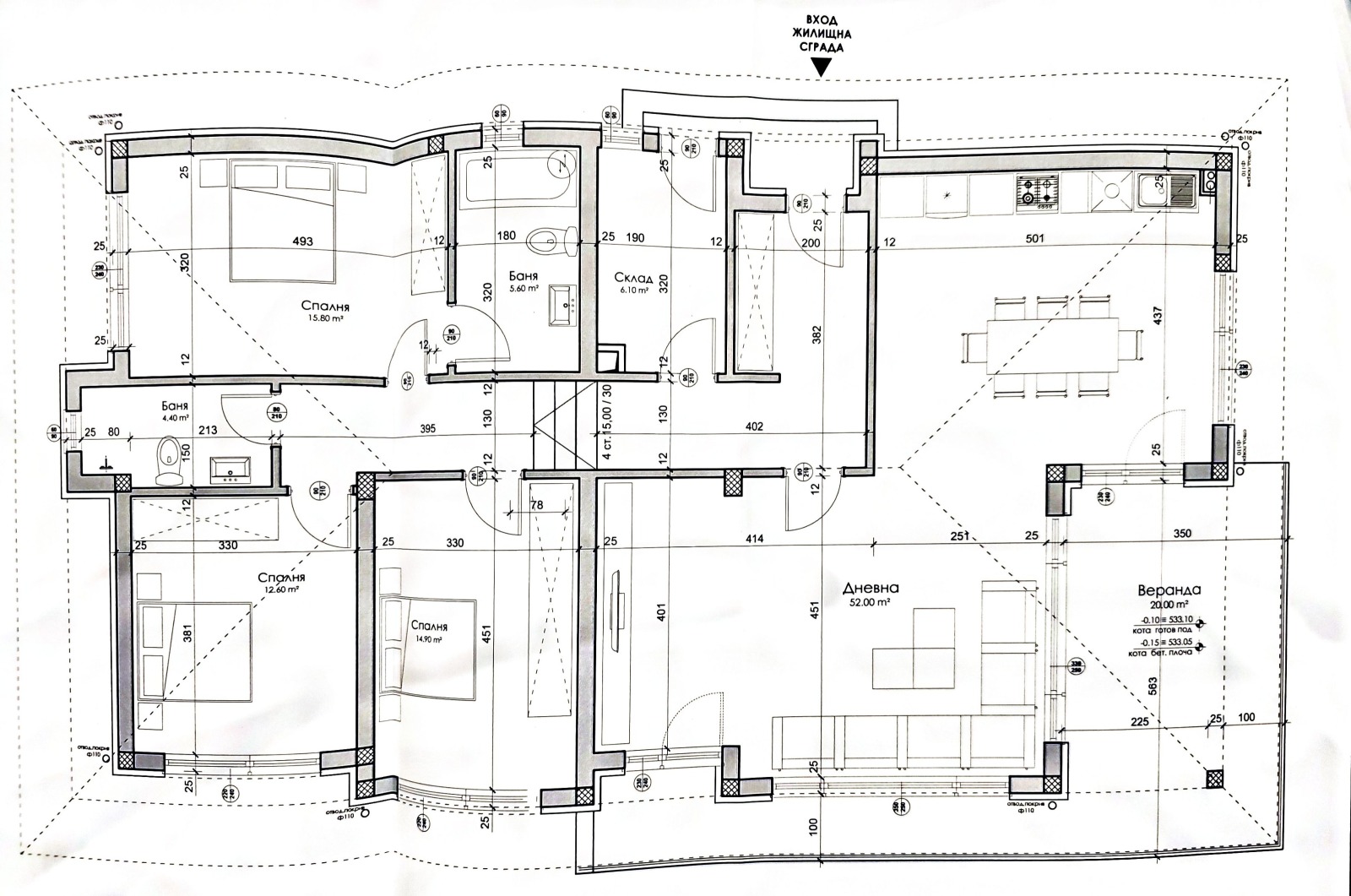
В къщата са на разположение голяма дневна с трапезария и кухня(52кв.м.),покрита тераса(20кв.м.),3 спални,2 бани с тоалетни,склад/техническо помещение.
Качествено изпълнение на строителството с висок клас материали.
Полагане на ЕЛ кабели,ЕЛ табло, кабели за сот и видеонаблюдение.
ВиК до тапа;структури за вграждане Grohe .Полагане на тръби за водно подово отопление,лири и конвектори.
Полагане на XPS-фибран по пода и циментова замазка.
ПВЦ Дограма висок клас (цвят по избор на клиента).Външна входна врата (подсилена).
Турбозолна мазилка на стени. Гипсокартон по тавани (скрити осветления по избор).Подпрозоречни камъни вътре и отвън с естествен камък.
Цокъл на къща и тераси - облицовка с естествен камък Травертин.
Вертикална планировка- бетонни огради;подпорни стени по двора;площадки и стъпала с бетон около къщата .Засипване и заравняване на двора с хумус.Направа на паркомясто край къщата с бетон.
Строителството на сградата ще започне през 2025г и ще бъде завършена по БДС през 2026г.
Може да се направи оферта и за напълно завършване на къщата според изискванията на клиента.
Плащане на етапи според извършените строителни дейности.
Осигурен кредит.
Виж всички обяви в chakalov.bazar.bg или тук
        
       
         
         
         
         
         
         
         
         
         
         
         
         
         
         
         
         
             
             
             
             
             
             
             
             
             
             
             
             
             
             
             
            






