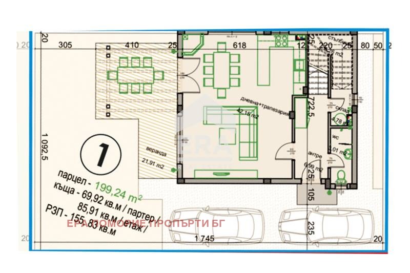
на първи етаж от 69,92 кв.м , на втори етаж - 85,91кв.м , и РЗП - 155,83 кв.м, Предложеният дом се състои от:
- първи етаж: коридор, просторна дневна с трапезария и кухненски бокс, баня с WC, складово помещение, подходящо и за централно отопление, вътрешни стълби към втори етаж. От дневната има директен излаз на широка веранда и към двора.
- втори етаж: коридор, три непреходни спални, две санитарни помещения и две тераси. Едната спалня има собствена тераса с изглед към двора, а другите две спални имат изход към обща панорамна тераса по посока на морето.
- две парко-места и прилежащо дворно място от 117,40 кв.м към този дом.
Къщата се предава в степен на завършеност по БДС: стени - мазилка, подова настилка - замазка, дограма - PVC бял цвят,тераси - топло и хидроизолация, настилка - гранитогрес. Изведени изводи за интернет, кабелна телевизия, телефон, ВиК, електричество.
Сградата / къщата / е със стоманобетонна конструкция и тухлена зидария, има цялостна топло и хидроизолация. Част от фасадата, около 50% е с облицовка от камък травертин и комбинация от полимерна хидрофобирана мазилка, парапети на терасите - ковано желязо, скатен покрив с керамични керемиди. Свободната дворна площ ще бъде озеленена и благоустроена- щампован бетон и ограда от ковано желязо и жив плет.
Има възможност за предаване на този имот в степен на завършеност ' до ключ', както и обзавеждане, срещу допълнително договаряне и заплащане на тази услуга.
Нов проект от десет двуетажни къщи в новия квартал на Поморие. Удобна локация за обитаване и отдих в спокоен район,
с лесен достъп до плажа и инфраструктурата на града. В близост до комплекс Сънсет Ризорт, само на 150 метра от южния плаж,
на 300 м от Автогара Поморие, на 100 м от автобусна спирка и на 7 км от летище Бургас.
Проектът е стартиран през месец март 2024г., а акт 16 се очаква до 24 месеца.
Всеки имот предлаган от ЕРА е проверен, посетен на място и заснет от наш консултант.
CREDITERA Е РЕГИСТРИРАН КЪМ БНБ КРЕДИТЕН ПОСРЕДНИК И КАТО ТАКЪВ ОФИЦИАЛНО ПРЕДОСТАВЯ ВСИЧКИ ВИДОВЕ КРЕДИТИ КЪМ ВСИЧКИ БАНКИ БЕЗПЛАТНО!!!
ЗАЯВЕТЕ при нас искане за финансиране от всички Банкови институции! Кредитиране на избрания от Вас имот!
Обадете се още сега!
Заредени с добро настроение и приятелско отношение Ви каним, да реализираме заедно Вашите очаквания!
ВЕЧЕ СМЕ НАД 360 КОНСУЛТАНТИ НЕДВИЖИМИ ИМОТИ В ЕРА - СТАНИ ЕДИН ОТ НАС !
Оферта 2301668
Виж всички обяви в pomorieproperty.bazar.bg или тук
        
       
         
         
         
         
         
         
         
         
         
             
             
             
             
             
             
             
             
            






