Реф. номер 30104 - Отговорен брокер: Мария Маринова
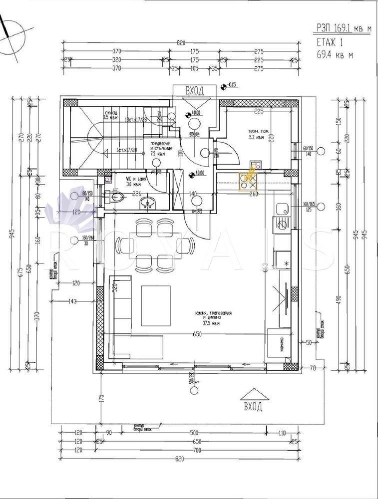
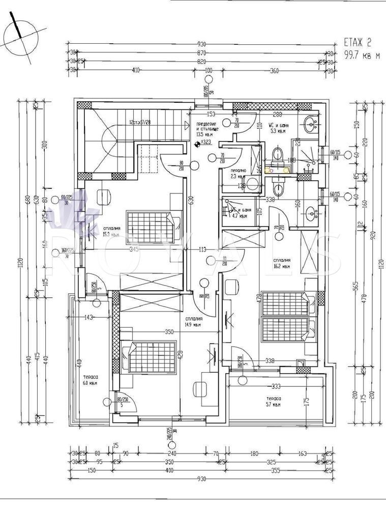
ДВЕ ПАРКОМЕСТА! ТИХ РАЙОН! ОТЛИЧЕН ДОСТЪП! БЛИЗОСТ ДО ВАРНА И ПЛАЖОВЕ! КАЧЕСТВО! ROYALS недвижими моти Ви предлага двуетажна къща на 10 км. от центъра на Варна и в близост до красивите плажове на кв. Аспарухово, Фичоза, Черноморец. Къщата е с РЗП 169,10 кв.м със следното разпределение: първият етаж е със ЗП 69,40 кв.м. и се състои от просторна дневна с кухненски бокс и трапезария 37,5 кв.м, баня с тоалетна, голям килер, складово помещение, входно антре и стълбище към втория етаж. От дневната се излиза на красива веранда с площ 15 кв.м. На втория етаж на площ 99,70 кв.м. са разположени три спални (16,20; 15,30 и 14,9 кв.м), комбиниран сънитарен възел към едната, втори санитарен възел на етажа, перално помещение и две тераси. Всички стаи са светли, с красиви френски прозорци. Изложението е изток/юг/запад.
Строителството се извършва с изключително качествени материали:
- Kерамични зидарски блокове с вертикални отвори за по-добра топлоизолация - ( WIENEREBERGER / CLIMATON ).
- Топлоизолационна система (CERESIT / BAUMIT)
- PVC / алуминиева дограма с троен стъклопакет включващ Енерджи и КА стъкла.
- Покрив топлоизолация Фибран / Каменна вата, крайно покритие PVC / TPO мембрана SIKA.
Къщата се предлага на БДС с опция за довършване до ключ. Изрядни документи. Възможност за разсрочено плащане.
Към имота има две паркоместа. Парцелът към имота е 347 кв.м.
Къща е част от комплекс от три къщи. Отлична локация - в близост до автобусна спирка, хранителен магазин и др.
Ако имате допълнителни въпроси или желаете да направим оглед, не се колебайте да се свържете с нас: 0884 939484
Обадете се сега и цитирайте този код: 30104
ROYALS ще бъде до вас през целия процес на сделката! Извършваме всички необходими технически и юридически проверки на имота, който сте избрали. Агенцията може да ви съдейства и за отпускане на банков кредит при преференциални условия!
ROYALS - Чистота. Детайли. Съвършенство.
Виж всички обяви в royalsbg.bazar.bg или тук
        
       
         
         
         
         
         
         
         
         
             
             
             
             
             
             
             
            






