БЕЗ КОМИСИОН! Самостоятелна редова къща, в новостроящ се луксозен комплекс от затворен тип, със седем редови къщи разположен в гр.Банкя, кв. Михайлово. Районът е известен национален и международен балнеоложки курорт, град и същевременно район на София. Разположен е в полите на Люлин планина, един от най-бързо развиващите се райони на София, предлагащ невероятно спокойствие и комфорт на живот.
Банкя е курортно селище и съчетава отличната градска инфраструктура, басейни с минерална вода, обществени паркове и еко пътеки, чист въздух и бърза връзка до центъра на София.
Комплексът е с отлична локация - намира се в непосредствена близост до градски транспорт и същевременно споойен и тих район.
Проектът предлага изграждане на седем къщи в парцел от 1980 кв.м и всяка е с квадратура 234 кв.метра застроена площ. Всяка къща има самостоятелен двор и общи идеални части от общите части на парцела.Има възможност за поставяне на малък асансьор, срещу допълнително договаряне.
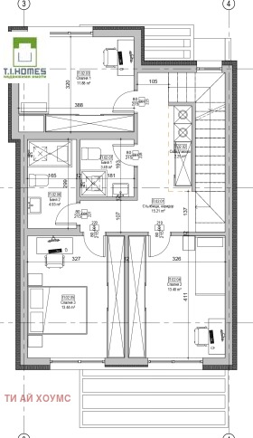
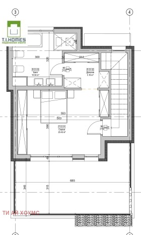
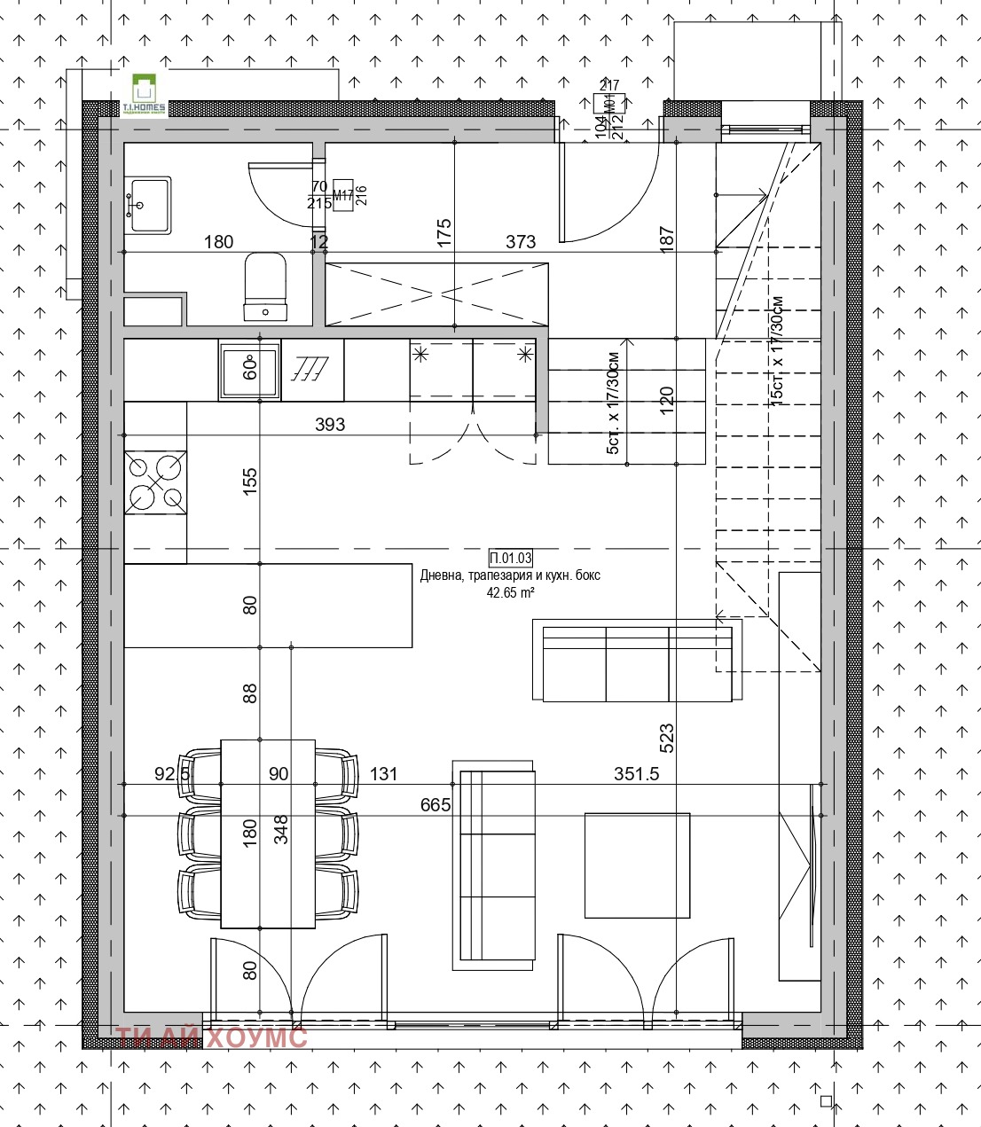
Къщите имат следното разпределение:
Първи етаж:
Входно антре, просторна дневна част, включваща кухненски бокс с килер, трапезария и голяма дневна част, от която се излиза на веранда с директна връзка с двора. На етажа баня и тоалетна и складово -техническо помещение
Втори етаж:
Три самостоятелни спални, дрешник и баня и тоалетна към нея. Другите две спални са с общa баня и тоалетна. На етажа има и мокро помещение.
Трети етаж родителска спалня с баня, дрешник и тераса
Към всяка една от къщите има обособен двор.
За всяка отделна къща са предвидени две паркоместа с ток и вода.
Къщите са проектирани така, че от всяка къща се открива страхотна панорамна и гледка към планината. Централна канализация.Заверен член 181.







