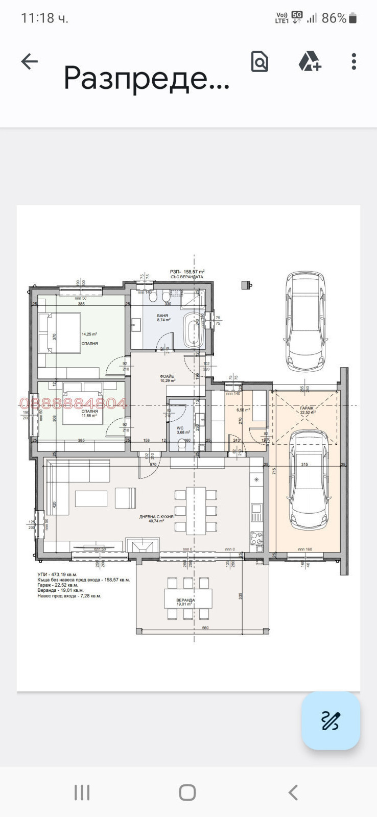
Уважаеми клиенти, представяме на вашето внимание еднофамилна къща по европейски стандарт в гр. Септември. Обща РЗП-158.57 м2, а на УПИ-то 473.19 м2. Имотът е с прекрасна локация: на прага на полите на Родопите, на 90 км. по магистралата от София, на 16 км. от гр. Пазарджик, на 5 км. от мин.бани-с. Варвара, на 7 км. мин.плаж-с.Белово, на 30 км. от Велинград и на първа спирка от теснолинейката за Банско и Добринище. Помещенията са както е видно от разпределението: коридор, хол с трапезария, две спални, голяма баня, тоалетна, сервизно помещение с топла връзка от гаража, веранда, гараж и паркомясто. Степента на завършеност e на шпакловка и замазка. Сградата е с Акт 16. Предлагаме варианти на разсрочено плащане, както и с ипотечен кредит. В цената е включена и стойността на парцела. 
Уважаеми клиенти в съвременният забързан свят търсим предимно жилища в урбанизирани райони, задушени от бетон, прах и дим и далече от природата, ние ви предоставяме една алтернатива на това, а именно нов, спокоен, чист и уютен дом.
        
        
      
     
         
         
         
         
         
         
         
         
         
         
         
         
         
         
         
         
         
             
             
             
             
             
             
             
             
             
             
             
             
             
             
             
             
            






