ОМЕГА представя за продажба нов имот в строеж - самостоятелна еднофамилна къща на два етажа. Този модерен дом ще съчетава детайлите на удобството и градския стил на живот. Намира се в най-предпочитаното място за покупка на имот в Бургас - вилна зона МИНЕРАЛНИ БАНИ. Къщата ще разполага с двор с площ от 400кв.м и РЗП 180кв.м.
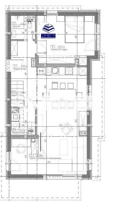
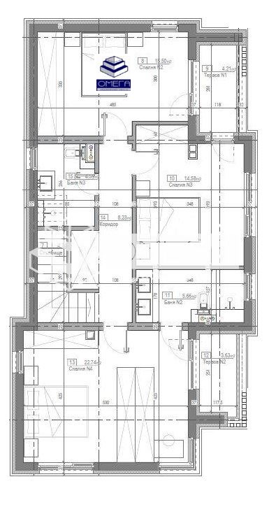
Разпределението е функционално, с помещенията са просторни:
- Първи етаж с площ 80,56кв.м - входно антре, просторна и слънчева дневна стая с бокс кухня, кабинет, домакинско помещение, дрешник, санитарен възел, баня с WC;
- Втори етаж с площ 99,62кв.м - три спални, коридор, две бани и WC и две панорамни тераси.
Къщата е в строеж и се предлага завършена на тапа .
Има възможност за разсрочено плащане.
БЕЗ ТАКСА ПОДДРЪЖКА!
Виж всички обяви в omega-bs.bazar.bg или тук
        
       
         
         
         
         
         
             
             
             
             
            






