ОФЕРТА:22501 ЕДНОФАМИЛНА КЪЩА!!! В СОБСТВЕНО УПИ!!! Предлагаме Ви за продажба КЪЩА в района на село Първенец. Къщата е ситуирана в комплекс от затворен тип.
Възможност за закупуване на къщата на цена от 230000Евро - при завършване на етап АТК-14. Това е подходящ вариант, за хора които имат желание да завършат сами строежа на имота.
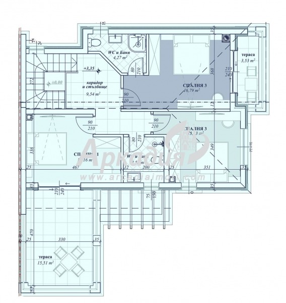
Разпределение:
Етаж 1 - Просторна дневна с трапезария и кухня, баня с тоалетна, излаз на самостоятелен двор и веранда, входно антре, килер, перално помещение сервизно помещение, гараж, парко място.
Етаж 2 - Три спални. Родителска със собствен санитарен възел и тераса, баня с тоалетна, просторна тераса, коридор.
В задният двор има ситуирани покрита веранда с външна камина и място за отдих.
Къщата се продава в следното състояние: напълно завършен изграден и ограден двор, шпакловка и замазка, тръби за подово отопление в подовата замазка, Електро и ВиК инсталация, окачени тавани, солидни и модерни входна врата, дограми, прозорци и гаражна врата. ЗА ПОВЕЧЕ ИНФОРМАЦИЯ И ОГЛЕДИ ТЕЛ.ЗА КОНТАКТИ 0879056454. ВИЖТЕ ВСИЧКИ НАШИ ОФЕРТИ - WWW.ARCADIAIMOTI.COM







