Оферта 60551:Имаме удоволствието да ви предоставим възможността да оставите апартамента в забързания град и да заживеете на спокойно и уютно място в покрайнините му, предлагайки ви новоизградена самостоятелна Къща в БУТИКОВ ЛУКСОЗЕН КОМПЛЕКС с Лимитиран Брой от Къщи, само на 6 км. от центъра на града в полите на Родопите.
Района се отличава с ниско застрояване предимно от еднофамилни къщи, уредена инфраструктура - лесен и удобен достъп : асфалтов път, ток, права вода и канализация.
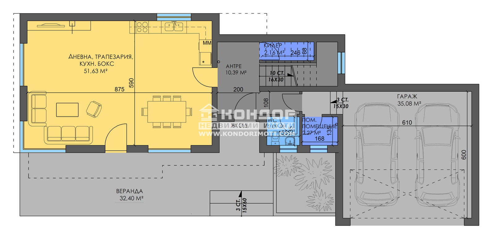
РАЗПРЕДЕЛЕНИЕ: Къщата е Разположена на две нива с общо застроена площ от 250 кв.м. в двор с площ от 500 кв.м., проектирана с модернистична визия и концепция, залагаща на увеличени светли пространства, високи тавани, френски прозорци създаващи усещане за простор и свобода. Къщите са с достъп от асфалтов път, вързани към Вик с права вода и с канализация !!! На първо ниво е разположена просторна и функционална дневна с площ от 52 кв.м., която ще създаде желания комфорт и уют, оформена на кътове: място за Камина, кът за мека мебел с TV секция, трапезарна част и отделен светъл кухненски бокс с излаз на покрита веранда с площ от 32кв.м., широко входно антре с място за гардеробна, тоалетна с мивка, килер и двоен гараж с топла връзка. На второ ниво са разположени три спални, като родителската 18кв.м. разполага със собствена баня с тоалетна и дрешник, две детски спални, съответно 14 и 15кв.м. и втора баня с тоалетна, която обслужва двете детски стаи и перално помещение и една тераса.
Техническа спецификация на довършителните работи:
Настилки антре, всекидневна, кухненски бокс, стълбищна площадка гранитогрес.
Стени и тавани измазани с машинна мазилка.
Външни стени -топлоизолация 10 см.
Дограма висококачествена 6-камерна PVC.
Възможност за разсрочено плащане в рамките на строителството или Закупуване чрез Банков Кредит с изключително изгодни условия за Клиенти на Агенция КОНДОР !!!
ВИЖТЕ ОЩЕ ИЗГОДНИ ОФЕРТИ НА https://www.kondorimoti.com/ С ЕЖЕДНЕВНА АКТУАЛИЗАЦИЯ!







