АКТ 16
Изградена канализация.
Без комисиона от клиента, директно от инвеститора.
Двуетажна къща в затворен жилищен комплекс En Casa в гр. Годеч (на 40км. от София). Разположението предлага красива панорамна гледка от всяка една от къщите. Басейн, детска площадка и зона за релакс, предвидени за общо ползване от всички живущи. Прецизно аранжирани зелени общи части с осигурена поддръжка през цялата година. Общата част на парцела е 21 970 м?. Общият брой на къщите в проекта на е 26, разположени на 4 нива. Благодарение на разчупеното разпределение, живущите могат да имат все по-силно усещане за лично пространство и простор.
Проектирали сме всяка къща с големи френски прозорци, даващи усещане за близост до природата. Всяка една от къщите разполага със собствен просторен двор (600-800м2), паркоместа или гаражи според желанието на бъдещите собственици и включен допълнителен паркинг за гости, разположен в началото на комплекса.
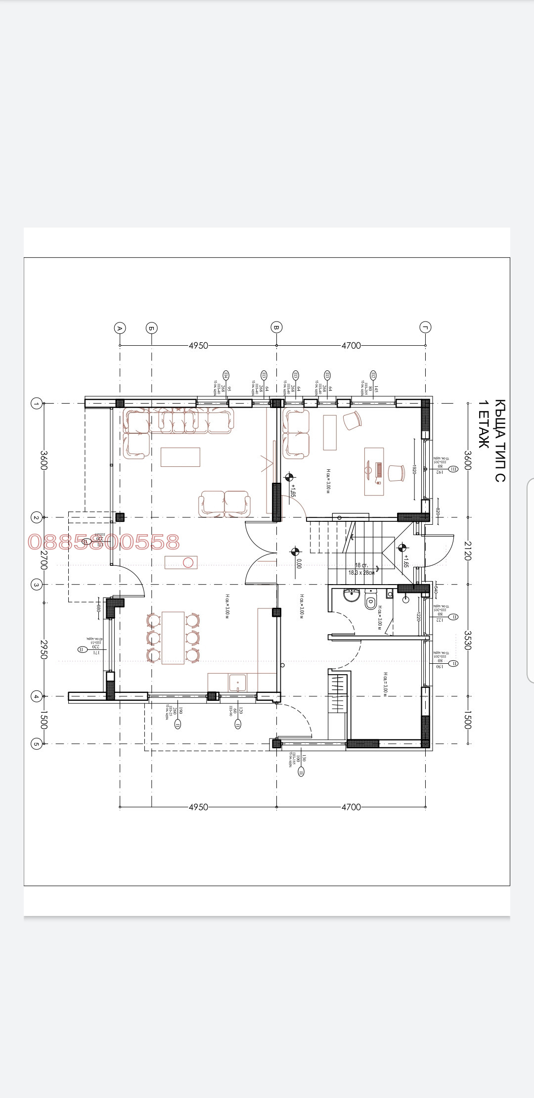
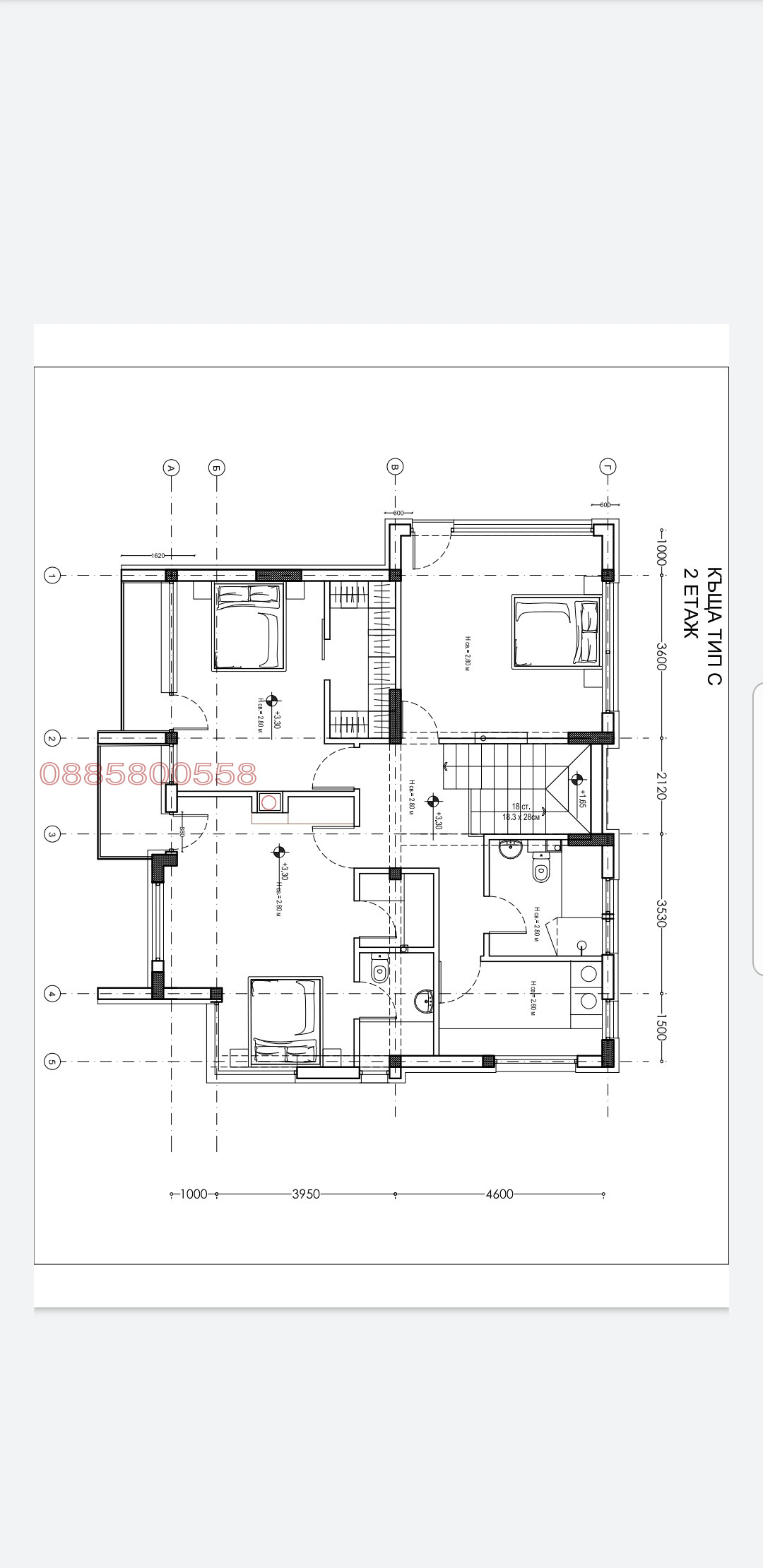
Разпределение:
233 м2 РЗП
2бр. гаражи (55 м2) - 288 м2 / 2бр. ПКМ
Етаж 1:
-хол;
-кухня;
-тоалетна;
-офис/спалня/сервизно помещение.
Етаж 2:
-3 спални ( 2юг, 1запад);
-гардеробна;
-мокро помещение;
-2бр. баня с тоалетна.



