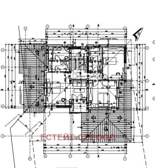
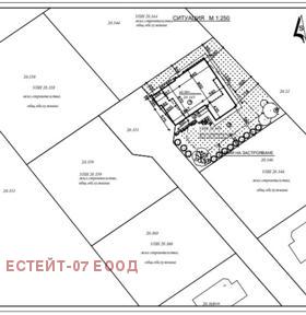
За Вас, новодомци! Предлагаме на Вашето внимание еднофамилна къща, състояща се от два етажа , с РЗП от 200 кв.м. в собствен, самостоятелен двор от 540 кв.м.Къщата е снабдена с всички необходими комуникации - ток, вода, канализация и достъп по асфалтов път.Етаж 1: гараж със сервизно помещение,подходящо за мазе,винарна,котелно,работилница с площ Просторна дневна с трапезария и кухненски бокс ,просторно входно антре , баня с тоалетна.Като има възможност за отделяне на самостоятелна спалня.
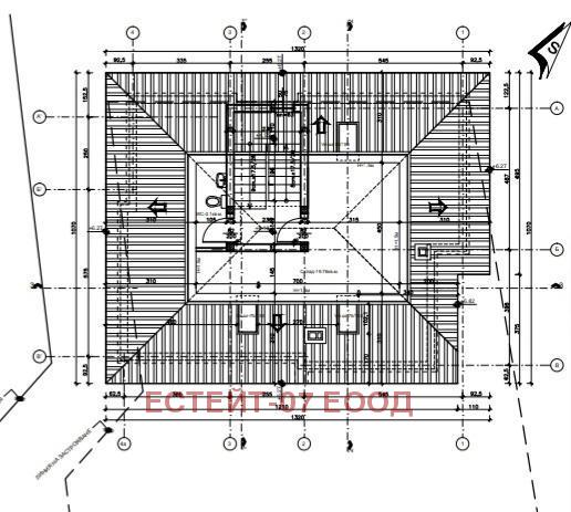
Етаж 2 : Антре към три самостоятелни спални -голяма родителска спалня със собствена баня с тоалетна, дрешник и излаз на тераса и две детски стаи,като едната е с излаз на тераса с втори към тях санитарен възел и перално помещение.
Светъл и просторен мансарден етаж състоящ се от самостоятелен апартамент с баня и тоалетна. Къщата се издава на Акт 16. Включва изцяло изградена вертикална планировка (ограждане на парцела с ограда, и пътеки), топлоизолация - 10 см, дограма - 5-камерна с 32 мм стъклопакет, 4 сезона с газ. Покрив керемиди Bramac. Замазка и бяла гипсова мазилка вътре.Очаквано завършване до края на 2026г
Предвидени са гъвкави схеми на плащане. Пълно съдействие и най-добри условия за банково кредитиране. За повече информация и огледи: 0898/ 573 681.







