Едно райско кътче на минути от град София.
БИЛДИНГ БОКС предлага за продажба тристаен апартамент със собствен двор намиращ се в новостроящ се комплекс в с. Мировяне.
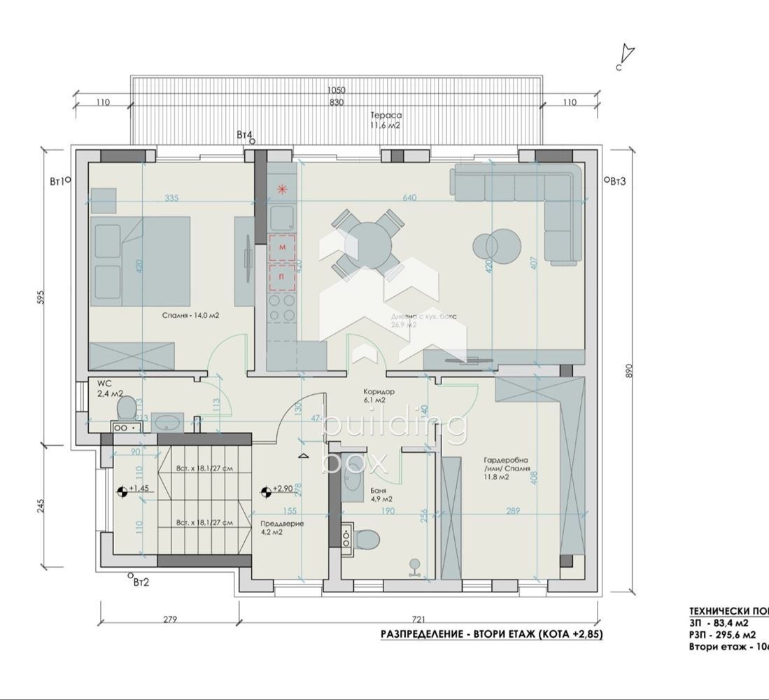
Апартаментът е с югоизточно изложение, със застроена площ от 106кв.м. и има следното разпределение: Антре, баня с тоалетна, отделна тоалетна, две спални, хол с кухненски бокс, тераса.
Подово отопление в цената! - отоплението е на ток, като към всеки апартамент има и изградено подово отопление и подготовка за термопомпа.
Паркомясто в цената! - към всеки апартамент ще има обособено паркомясто в двора на съответния апартамент.
Собствен двор! - всеки апартамент в сградата, без значение от етажа, ще разполага със собствен обособен двор!
Строителството се изпълнява с тухли Wienerberger, PVC 7 камерна дограма на Trocal, покрива е направен със системата на Tondach, 10см каменна вата на стените и 15см вата на покрива.
Проектът е на етап взет Акт15 и до срок за Акт16 до март месец.
Комплексът се намира точно на входа на селото, което позволява бърз достъп до софийския околовръстен път, магистралата и центъра на София.
В непосредствена близост има спирка на градски транспорт, който ходи до метростанция Обеля и Хан Кубрат.
Перфектното съотношение между градска среда и спокоен живот извън града!
В селото има парк, супермаркет, аптека и заведения.
Схемата на плащане е:
10% се заплащат при предварителен договор
40% се заплащат при Акт образец 14 и чл. 181
40% се заплащат при Акт образец 15
10% се заплащат при Акт образец 16
БИЛДИНГ БОКС предоставя безплатна консултация и съдействие при финансиране на избрания от Вас имот.
Оферта 18571







