Към имота има прилежащи маза и 1/2 идеални части от тавана. Дворът с площ от 365 кв. м., който е изцяло към продавания имот, е подходящ за отдих, барбекю зона или допълнителна постройка.
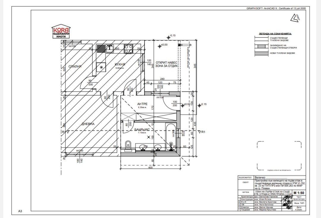
В момента се изготвя проект за разширяване на етажа от къщата с още 22 кв. м., което ще увеличи функционалността на имота.
Имотът е за ремонт, което дава възможност за преустройство и обзавеждане по вкус на новия собственик.
В двора е монтирана фотоволтаична централа, която се продава отделно на цена от 60 000 лева без ДДС.
Оферта 2449
Виж всички обяви в kora.bazar.bg или тук
        
       
         
         
         
         
         
         
         
         
         
         
         
         
         
         
             
             
             
             
             
             
             
             
             
             
             
             
             
            


